Valutazione immobiliare indipendente, accurata e gratuita
Appartamento in vendita a Paderno Dugnano a 199.000 € (cod.64f94e5e)
Caasa non ha sufficienti informazioni per commentare l'appartamento in vendita a Paderno Dugnano - 64f94e5e.
Analisi immobiliare
I dati in posseso di Caasa per quest'immobile sono insufficienti, inaffidabili o contraddittori per proporre un'analisi attendibile.
Mercato immobiliare a Paderno Dugnano
Per quanto riguarda più in generale la città di Paderno Dugnano, sono presenti al momento oltre 500 annunci per
appartamenti in vendita (meno del 5% dell'intera provincia)
e il maggior numero di annunci per questa tipologia sono relativi alla zona di Palazzolo Milanese.
Possiamo inoltre considerare che in tutta la città negli ultimi 6 mesi, i prezzi per appartamenti in vendita sono
in forte aumento (+13,90%).
NOVITÀ Il risultato che vedi dipende dai dati che siamo riusciti ad estrarre dall'annuncio: ottieni una stima più accuranta di questo immobile, inserendo dati più precisi.
N.B. L'Opinione di Caasa® è un servizio sperimentale realizzato tramite tecniche di Intelligenza Artificiale, fornito senza alcuna garanzia di correttezza e completezza. Leggi il disclaimer o segnalaci un problema.
IMMAGINI
IN SINTESI
PROPOSTO DA:
Studio Paderno S.R.L.
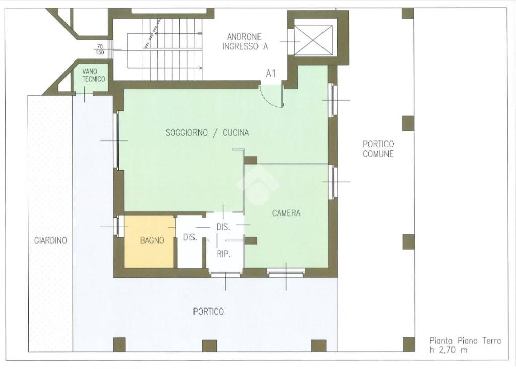
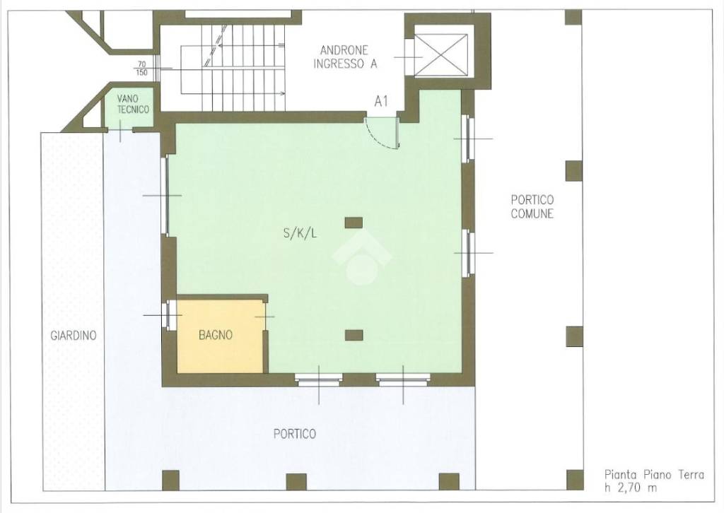
DESCRIZIONE
di recente costruzione con posto auto con giardino di recente costruzione
Nel pieno centro di Paderno Dugnano, all’interno del più bel contesto residenziale del Comune, immerso nel verde ma al contempo nelle immediate vicinanze di tutti i principali mezzi e servizi, proponiamo un signorile bilocale open-space, di recente edificazione e facente parte di una splendida palazzina con giardino condominiale curato alla perfezione. Posta al piano terreno con tripla esposizione (sud - est - ovest) completamente sul verde, la soluzione si presenta come un unico ambiente ancora da rifinire, che può comodamente ospitare una zona giorno con cucina a vista, una zona notte con eventuale cabina armadio ed un bagno finestrato con doccia. Dalla zona giorno si può accedere diretto alla parte esterna che prevede una prima parte piastrellata, una seconda parte a giardino di proprietà ed una ulteriore porzione di portico completamente coperto di quasi 40mq. Nell’appartamento è presente la predisposizione per l’impianto di allarme volumetrico e perimetrale, nonché la predisposizione per l’impianto di climatizzazione dell’aria in tutti i locali. Possibile la scelta di tutte le finiture, a seconda del capitolato offerto. Poniamo l’attenzione sulla zona di ubicazione dell'appartamento in quanto a 10 minuti a piedi dalla stazione di Paderno Dugnano e da tutti i servizi di prima necessità offerti dal centro cittadino quali scuole, ospedale, farmacia, supermercati ed ogni genere di negozio. Completa la soluzione la possibilità di annettere all’acquisto un box singolo ad €. 20.000,00


