Valutazione immobiliare indipendente, accurata e gratuita
L'Opinione di Caasa® per l'appartamento in affitto a Novate Milanese a 1.200 € mese (cod.65349cf6)
Secondo Caasa, per l'appartamento in affitto a Novate Milanese, la richiesta di 1.200 € mese è significativamente vantaggiosa rispetto agli annunci simili.
Analisi immobiliare
L'appartamento, situato nella zona OMI B1, è proposto in affitto (da Immobiliare Il Portone) a
1.200 € mese per una
superficie commerciale di
95 m² e quindi ad un prezzo per metro quadrato pari a
12,6 €/m²
.
Questo prezzo
è più vantaggioso di quello stimato da Caasa per immobili in affitto simili per tipologia, caratteristiche, classe energetica e zona, che è compreso tra
15,3 €/m² mese e
16,5 €/m² mese.
Data la posizione dell'appartamento si sono utilizzati in raffronto i valori medi nelle zone limitrofe . Ad affinare la stima ha contribuito anche la classe energetica (F) oltre alla conoscenza dello stato dell'immobile (di recente costruzione che però è decisamente contraddittorio con la classe energetica). In virtù di queste considerazioni è possibile ottenere un intervallo di valori accettabili per l'offerta relativamente limitato.
Mercato immobiliare a Novate Milanese
Per quanto riguarda più in generale la città di Novate Milanese, sono presenti al momento più di trenta annunci per
appartamenti in affitto (meno dell'1% dell'intera provincia) .
NOVITÀ Il risultato che vedi dipende dai dati che siamo riusciti ad estrarre dall'annuncio: ottieni una stima più accuranta di questo immobile, inserendo dati più precisi.
N.B. L'Opinione di Caasa® è un servizio sperimentale realizzato tramite tecniche di Intelligenza Artificiale, fornito senza alcuna garanzia di correttezza e completezza. Leggi il disclaimer o segnalaci un problema.
IMMAGINI
IN SINTESI
DESCRIZIONE
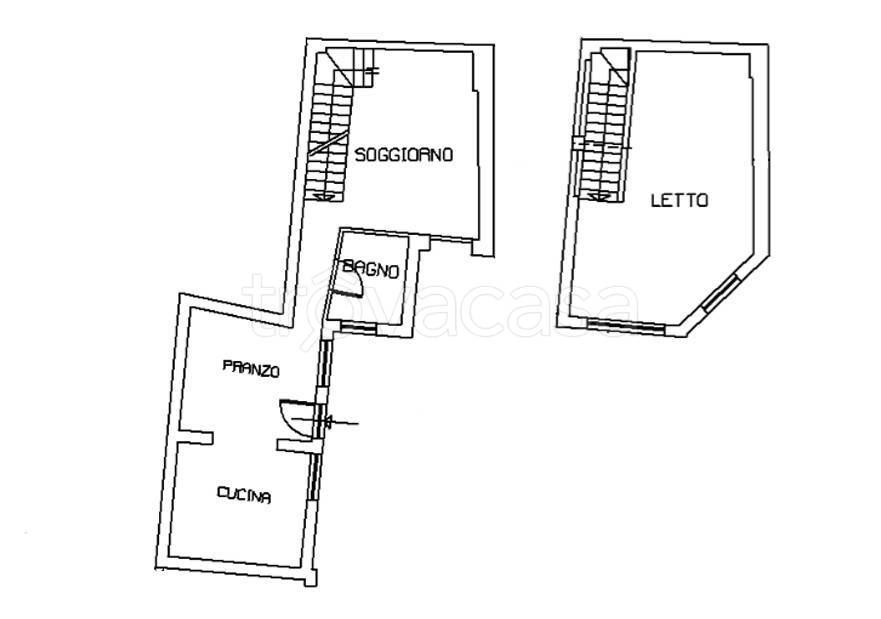
di recente costruzione di nuova costruzione con termocondizionamento con cucina abitabile di recente costruzione
Centro Paese, in piccolo contesto di recente costruzione proponiamo in locazione appartamento di due locali disposto su due livelli. Al piano terra troviamo una cucina abitabile, sala da pranzo, soggiorno e bagno; una scala conduce al piano mansardato dove troviamo un'ampia camera da letto. Riscaldamento autonomo. Si richiedono referenze dimostrabili. Contratto a canone concordato 3+2 anni. Euro 1.200 mensili. Libero subito


