Valutazione immobiliare indipendente, accurata e gratuita
L'Opinione di Caasa® per la casa indipendente in vendita a Nerviano a 410.000 € (cod.65a3cff4)
Secondo Caasa, per la casa indipendente in vendita a Nerviano, la richiesta di 410.000 € è leggermente svantaggiosa rispetto agli annunci simili.
Analisi immobiliare
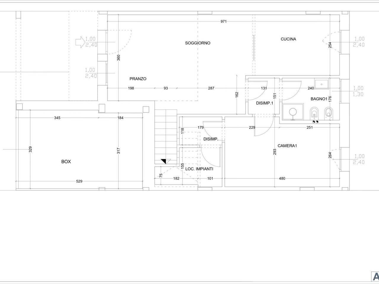
La casa indipendente, situata nella zona OMI D1, è proposta in vendita a
410.000 € per una
superficie commerciale di
135 m² e quindi ad un prezzo per metro quadrato pari a
3037 €/m²
.
Questo valore
è leggermente meno conveniente di quello stimato da Caasa per immobili in vendita simili per tipologia, caratteristiche, classe energetica e localizzati nella stessa zona OMI, che è compreso tra
2.707 €/m² e
2.886 €/m².
La conoscenza con buona approssimazione della localizzazione dell'immobile ha consentito di utilizzare come raffronto i dati medi elaborati esattamente nella zona OMI di appertenenza (PERIFERIA). Inoltre, Caasa ha potuto affinare la stima anche con la conoscenza della classe energetica (A+). In virtù di queste considerazioni è possibile considerare un intervallo di valori accettabili per l'offerta abbastanza limitato.
Mercato immobiliare a Nerviano
Per quanto riguarda più in generale la città di Nerviano, sono presenti al momento più di 150 annunci per
case indipendenti in vendita (meno dell'1% dell'intera provincia)
e il maggior numero di annunci per questa tipologia sono relativi alla zona di Sant'Ilario.
Per quanto riguarda la dinamica dei prezzi, negli ultimi 6 mesi i prezzi medi in tutta la città per case indipendenti in vendita sono
in aumento (+3,93%).
NOVITÀ Il risultato che vedi dipende dai dati che siamo riusciti ad estrarre dall'annuncio: ottieni una stima più accuranta di questo immobile, inserendo dati più precisi.
N.B. L'Opinione di Caasa® è un servizio sperimentale realizzato tramite tecniche di Intelligenza Artificiale, fornito senza alcuna garanzia di correttezza e completezza. Leggi il disclaimer o segnalaci un problema.
IMMAGINI
IN SINTESI
PROPOSTO DA:
CASATUA Arese
DESCRIZIONE
con balcone con cucina abitabile con giardino
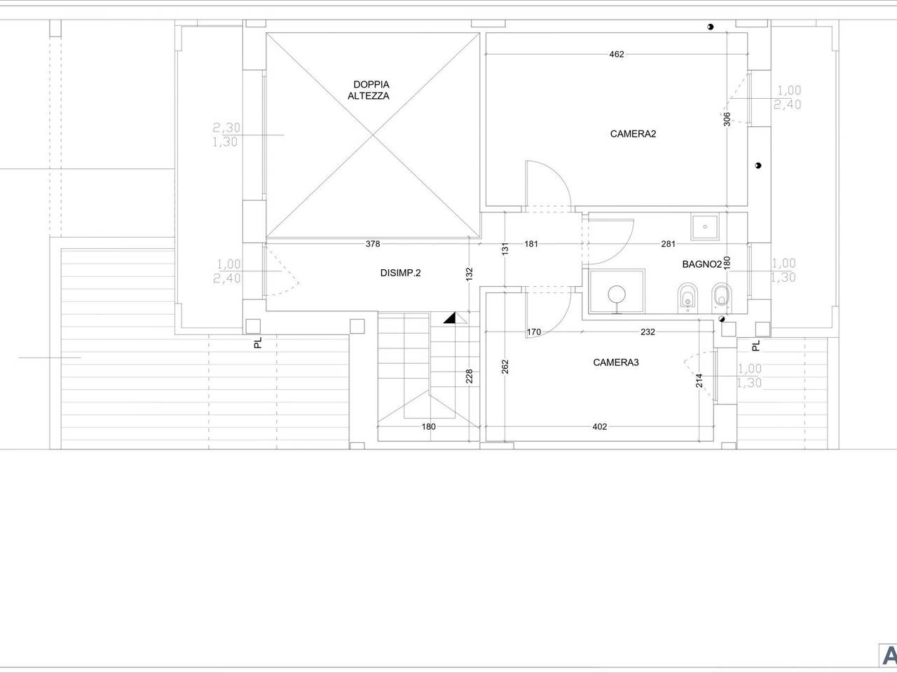
All’interno di un elegante contesto residenziale di sole 8 ville, proponiamo Villa A3, una soluzione indipendente che unisce design moderno, funzionalità e totale privacy. La villa dispone di ingresso pedonale e carraio indipendente, con spazio pavimentato antistante il box e una gradevole area di giardino sul fronte, ideale come zona verde o di rappresentanza. Il progetto prevede la realizzazione di un comodo parcheggio adiacente alle abitazioni, realizzato direttamente dal costruttore, pensato per offrire ulteriore praticità ai residenti e ai loro ospiti. Una soluzione sempre più rara che garantisce facilità di parcheggio quotidiana, senza rinunciare all’ordine e alla vivibilità del contesto. L’ingresso conduce in un ampio soggiorno con suggestiva doppia altezza, che dona luminosità e respiro agli ambienti. A differenza di altre soluzioni, questa villa offre una cucina abitabile separata, perfetta per chi desidera ambienti distinti e più riservati, con accesso diretto al giardino privato. Sempre al piano terra troviamo una camera matrimoniale, elemento particolarmente ricercato per chi necessita di una zona notte principale sullo stesso livello, oltre a un servizio finestrato e a un comodo locale lavanderia/impianti. Al piano superiore, la scala conduce a un disimpegno impreziosito da parapetto in vetro con affaccio sulla zona living sottostante, creando continuità e valorizzando gli spazi. La zona notte si completa con una seconda camera, un servizio finestrato e due balconi, garantendo comfort e sfoghi esterni. Completa la proprietà un ampio box di 19 mq, dotato di cancello carraio e basculante automatizzati; al suo interno è presente la predisposizione per wallbox, ideale per la ricarica di auto elettriche. La villa è realizzata in con impianti e tecnologie di ultima generazione, assicurando elevato risparmio energetico, comfort abitativo e assenza di spese condominiali. L’efficienza energetica è ulteriormente valorizzata da un impianto fotovoltaico da 4,5 kW per ogni unità, con predisposizione per […]

