Valutazione immobiliare indipendente, accurata e gratuita
L'Opinione di Caasa® per la casa indipendente in vendita a Nerviano a 455.000 € (cod.65a3cff2)
Secondo Caasa, per la casa indipendente in vendita a Nerviano, la richiesta di 455.000 € è leggermente svantaggiosa rispetto agli annunci simili.
Analisi immobiliare
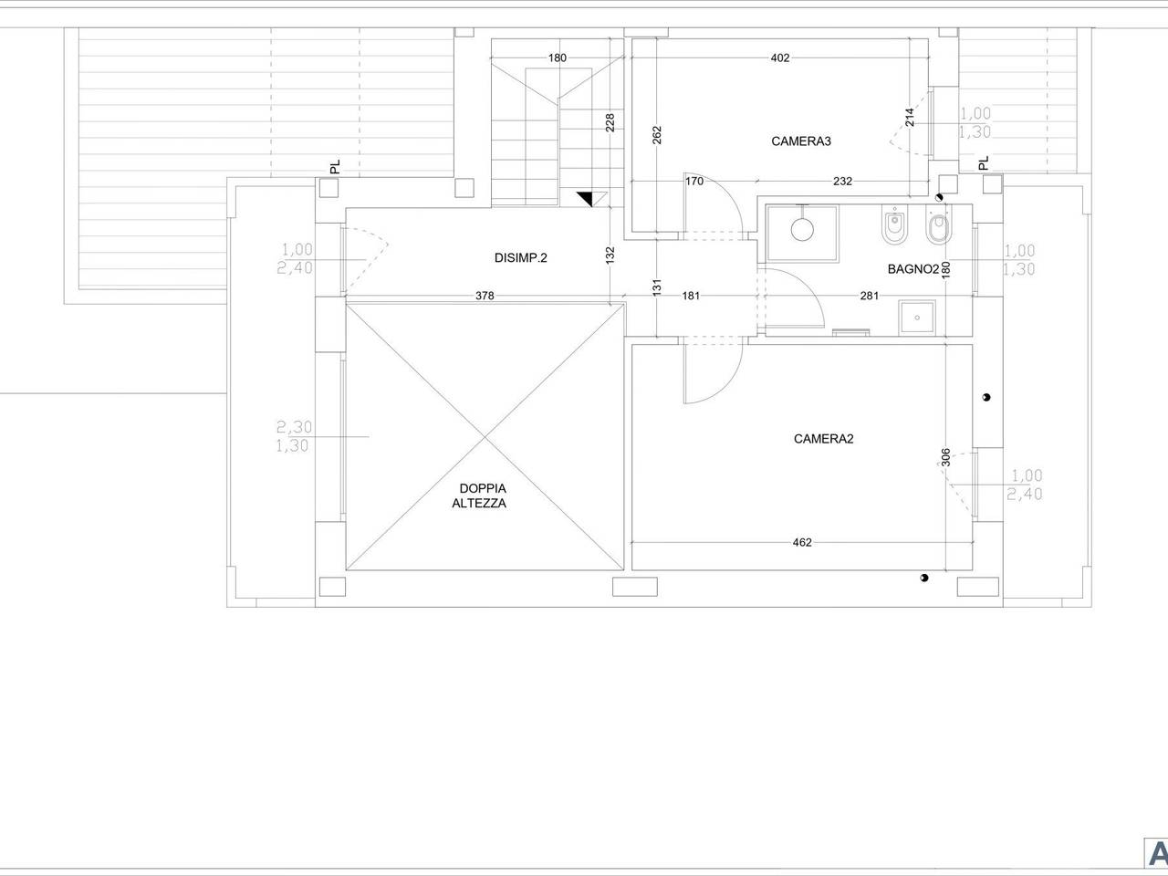
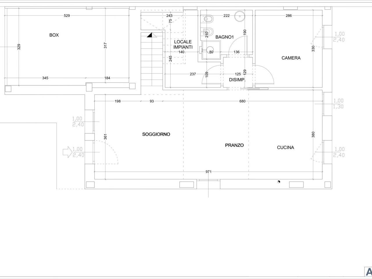
La casa indipendente, situata nella zona OMI D1, è proposta in vendita a
455.000 € per una
superficie commerciale di
152 m² e quindi ad un prezzo per metro quadrato pari a
2993 €/m²
.
Questo prezzo
è di poco superiore a quello stimato da Caasa per immobili in vendita simili per tipologia, caratteristiche, classe energetica e localizzati nella stessa zona OMI, che è compreso tra
2.698 €/m² e
2.877 €/m².
La conoscenza con buona approssimazione della localizzazione dell'immobile ha consentito di utilizzare come raffronto i dati medi elaborati esattamente nella zona OMI di appertenenza (PERIFERIA). Inoltre, Caasa ha potuto affinare la stima anche con la conoscenza della classe energetica (A+). Per i motivi esposti è possibile considerare un intervallo di valori accettabili per l'offerta abbastanza limitato.
Mercato immobiliare a Nerviano
Per quanto riguarda più in generale la città di Nerviano, sono presenti al momento più di 150 annunci per
case indipendenti in vendita (meno dell'1% dell'intera provincia)
e il maggior numero di annunci per questa tipologia sono relativi alla zona di Sant'Ilario.
Possiamo inoltre considerare che in tutta la città negli ultimi 6 mesi, i prezzi per case indipendenti in vendita sono
in aumento (+3,93%).
NOVITÀ Il risultato che vedi dipende dai dati che siamo riusciti ad estrarre dall'annuncio: ottieni una stima più accuranta di questo immobile, inserendo dati più precisi.
N.B. L'Opinione di Caasa® è un servizio sperimentale realizzato tramite tecniche di Intelligenza Artificiale, fornito senza alcuna garanzia di correttezza e completezza. Leggi il disclaimer o segnalaci un problema.
IMMAGINI
IN SINTESI
PROPOSTO DA:
CASATUA Arese
