Valutazione immobiliare indipendente, accurata e gratuita
Appartamento in vendita a Morimondo a 96.000 € (cod.654a7b19)
Caasa non ha sufficienti informazioni per commentare l'appartamento in vendita a Morimondo - 654a7b19.
Analisi immobiliare
I dati in posseso di Caasa per quest'immobile sono insufficienti, inaffidabili o contraddittori per proporre un'analisi attendibile.
Mercato immobiliare a Morimondo
Per quanto riguarda più in generale il comune di Morimondo, sono presenti al momento più di dieci annunci per
appartamenti in vendita (meno dell'1% dell'intera provincia) .
Vedi altre informazioni direttamente su
Mercato-Immobiliare.info
NOVITÀ Il risultato che vedi dipende dai dati che siamo riusciti ad estrarre dall'annuncio: ottieni una stima più accuranta di questo immobile, inserendo dati più precisi.
N.B. L'Opinione di Caasa® è un servizio sperimentale realizzato tramite tecniche di Intelligenza Artificiale, fornito senza alcuna garanzia di correttezza e completezza. Leggi il disclaimer o segnalaci un problema.
IMMAGINI
IN SINTESI
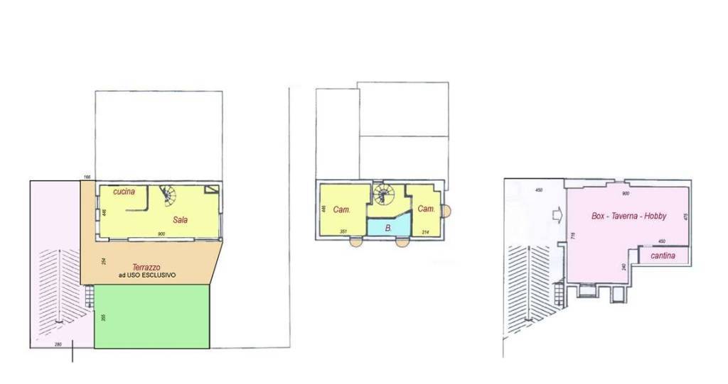
DESCRIZIONE
da ristrutturare con giardino con terrazza da ristrutturare con caminetto
L’acquisto in Nuda Proprietà significa che si diventa proprietari dell’immobile ma senza poterlo abitare né affittare subito. L’attuale proprietario mantiene il diritto di usufrutto, cioè il diritto di vivere nell’immobile per tutta la durata della sua vita (ad oggi uomo di 72 anni). Il possesso dell’immobile passerà al nuovo proprietario solo alla cessazione dell’usufrutto. Proprio per questo motivo il prezzo è ridotto di circa il 40% rispetto al valore di mercato. - Soluzione ideale per INVESTITORI ? Non adatto a chi cerca una casa da abitare subito dopo il rogito. NON ADATTO a chi deve fare MUTUO per acquistare. Nel cuore di Morimondo, uno dei borghi più affascinanti della Lombardia, celebre per la sua **Abbazia cistercense del XII secolo**, autentico gioiello dell’architettura medievale e meta ogni fine settimana di centinaia di visitatori, proponiamo in vendita un’esclusiva porzione frontale di villa edificata nel 1997 Un’abitazione unica, che richiama con le sue **finiture esterne in mattoni a vista** il fascino dell’abbazia stessa. Caratteristiche dell’immobile: Questa soluzione abitativa si sviluppa su due livelli, offrendo spazi ben distribuiti e un’atmosfera accogliente. La zona giorno si distingue per la sua luminosità, impreziosita dalla presenza di un camino che la rende calda e confortevole, mentre la cucina a vista aggiunge un tocco di convivialità all’ambiente. Salendo al piano superiore, si accede alla zona notte, composta da bagno padronale e due camere da letto che conservano tutto il fascino delle **travi in legno a vista**, regalando un senso di calore e autenticità. Uno dei punti di forza di questa abitazione è l'uso esclusivo del terrazzo di 30 mq esposto a Ovest, perfetto per godere della tranquillità del quartiere. Completano la proprietà una spaziosa **taverna di 60 mq**, un ambiente versatile che può essere adibito a sala hobby, zona relax o studio. I pavimenti in cotto e parquet nella zona giorno donano un tocco rustico ed elegante, mentre il parquet in rovere nelle camere aggi[…]

