Valutazione immobiliare indipendente, accurata e gratuita
Appartamento in vendita a Milano in zona Bocconi a 450.000 € (cod.658a4eb4)
Caasa non ha sufficienti informazioni per commentare l'appartamento in vendita a Milano in zona Bocconi - 658a4eb4.
Analisi immobiliare
I dati in posseso di Caasa per quest'immobile sono insufficienti, inaffidabili o contraddittori per proporre un'analisi attendibile.
Mercato immobiliare a Milano
Per quanto riguarda più in generale la città di Milano, sono presenti al momento ben oltre 20.000 annunci per
appartamenti in vendita (più della metà dell'intera provincia)
e il maggior numero di annunci per questa tipologia sono relativi alla zona di Centro Storico, mentre nella zona di Bocconi è presente un numero significativamente inferiore di annunci.
La richiesta media nella zona dove sorge l'appartamento (Bocconi pressi viale Beatrice D'Este) è pari a
6.615 €/m², non troppo distante dai valori medi cittadini per appartamenti in vendita.
Per quanto riguarda la dinamica dei prezzi, negli ultimi 6 mesi i prezzi medi in tutta la città per appartamenti in vendita sono
sostanzialmente stabili (+1,00%).
NOVITÀ Il risultato che vedi dipende dai dati che siamo riusciti ad estrarre dall'annuncio: ottieni una stima più accuranta di questo immobile, inserendo dati più precisi.
N.B. L'Opinione di Caasa® è un servizio sperimentale realizzato tramite tecniche di Intelligenza Artificiale, fornito senza alcuna garanzia di correttezza e completezza. Leggi il disclaimer o segnalaci un problema.
IMMAGINI
IN SINTESI
DESCRIZIONE
di nuova costruzione con cantina con termocondizionamento di nuova costruzione con cortile
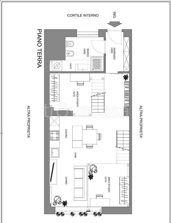
Viale Beatrice D'Este, stabile signorile, Loft di nuova realizzazione accatastato abitazione altezza 4 metri di 60 mq ca. oltre soppalco d'arredo, piano terra, ingresso indipendente in silenzioso cortile, doppia esposizione, piacevole contesto, finiture di pregio, zona living, cucina a vista, ripostiglio/cabina armadio, n. 2 ripostigli in quota, ampio bagno finestrato con doccia, aria condizionata caldo/freddo, riscaldamento centralizzato con radiatori, cantina


