Valutazione immobiliare indipendente, accurata e gratuita
Appartamento in vendita a Milano a 540.000 € (cod.655be82a)
Caasa non ha sufficienti informazioni per commentare l'appartamento in vendita a Milano - 655be82a.
Analisi immobiliare
I dati in posseso di Caasa per quest'immobile sono insufficienti, inaffidabili o contraddittori per proporre un'analisi attendibile.
Mercato immobiliare a Milano
Per quanto riguarda più in generale la città di Milano, sono presenti al momento ben oltre 20.000 annunci per
appartamenti in vendita (quasi la metà dell'intera provincia)
e il maggior numero di annunci per questa tipologia sono relativi alla zona di Città Studi.
Possiamo inoltre considerare che in tutta la città negli ultimi 6 mesi, i prezzi per appartamenti in vendita sono
sostanzialmente stabili (+1,18%).
NOVITÀ Il risultato che vedi dipende dai dati che siamo riusciti ad estrarre dall'annuncio: ottieni una stima più accuranta di questo immobile, inserendo dati più precisi.
N.B. L'Opinione di Caasa® è un servizio sperimentale realizzato tramite tecniche di Intelligenza Artificiale, fornito senza alcuna garanzia di correttezza e completezza. Leggi il disclaimer o segnalaci un problema.
IMMAGINI
IN SINTESI
PROPOSTO DA:
MDUE REAL ESTATE
DESCRIZIONE
da ristrutturare con cantina da ristrutturare con cucina abitabile
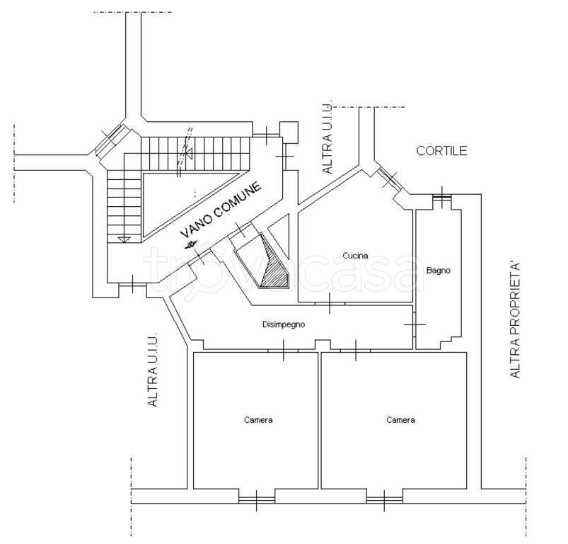
A pochi passi dalla Darsena e dai Navigli, proponiamo appartamento di circa 85 mq da ristrutturare, con ottime potenzialità di personalizzazione. L’immobile con doppia esposizione è attualmente composto da ampio ingresso, soggiorno, cucina abitabile, camera da letto e bagno. Grazie alla metratura e alla disposizione degli spazi, la ristrutturazione permette la realizzazione di in una seconda camera da letto, ottenendo così un trilocale ideale sia per uso abitativo che per investimento. La posizione strategica, servita da mezzi pubblici, negozi, università e aree verdi, rende la soluzione particolarmente interessante per chi desidera vivere il cuore autentico di Milano o per chi cerca un immobile da valorizzare. Possibilità di acquistare una cantina Per info e visite geom. Salvatore Munafò +39 3391030141

