Valutazione immobiliare indipendente, accurata e gratuita
Appartamento in vendita a Milano in zona San Siro a 660.960 € (cod.653fff08)
Caasa non ha sufficienti informazioni per commentare l'appartamento in vendita a Milano in zona San Siro - 653fff08.
Analisi immobiliare
I dati in posseso di Caasa per quest'immobile sono insufficienti, inaffidabili o contraddittori per proporre un'analisi attendibile.
Mercato immobiliare a Milano
Per quanto riguarda più in generale la città di Milano, sono presenti al momento ben oltre 20.000 annunci per
appartamenti in vendita (quasi la metà dell'intera provincia)
e il maggior numero di annunci per questa tipologia sono relativi alla zona di Città Studi, mentre nella zona di San Siro è presente un numero significativamente inferiore di annunci.
La richiesta media nella zona dove sorge l'appartamento (San Siro pressi Via degli Odescalchi) è pari a
4.800 €/m², non troppo distante dai valori medi cittadini per appartamenti in vendita.
Per quanto riguarda la dinamica dei prezzi, negli ultimi 6 mesi i prezzi medi in tutta la città per appartamenti in vendita sono
sostanzialmente stabili (+1,09%).
NOVITÀ Il risultato che vedi dipende dai dati che siamo riusciti ad estrarre dall'annuncio: ottieni una stima più accuranta di questo immobile, inserendo dati più precisi.
N.B. L'Opinione di Caasa® è un servizio sperimentale realizzato tramite tecniche di Intelligenza Artificiale, fornito senza alcuna garanzia di correttezza e completezza. Leggi il disclaimer o segnalaci un problema.
IMMAGINI
IN SINTESI
PROPOSTO DA:
Geom. La Porta
DESCRIZIONE
di nuova costruzione con posto auto di nuova costruzione con garage in asta giudiziaria nuda proprietà
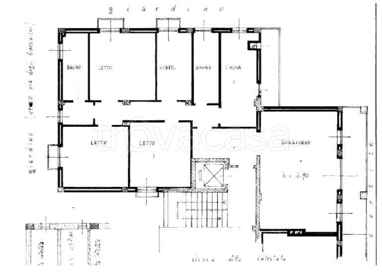
DATA ASTA 24/02/2026 ANALOGICA Milano via degli Odescalchi 22 Nuda proprietà di appartamento ad uso abitativo di circa 159,98 mq, posto ai piani secondo e interrato, Completa la proprietà un box ad uso autorimessa di circa 15 mq, posto al piano inter […]
