Valutazione immobiliare indipendente, accurata e gratuita
Appartamento in vendita a Milano in zona Città Studi a 450.000 € (cod.652c903a)
Caasa non ha sufficienti informazioni per commentare l'appartamento a Milano in zona Città Studi - 652c903a.
Analisi immobiliare
I dati in posseso di Caasa per quest'immobile sono insufficienti, inaffidabili o contraddittori per proporre un'analisi attendibile.
Mercato immobiliare a Milano
Per quanto riguarda più in generale la città di Milano, sono presenti al momento ben oltre 20.000 annunci per
appartamenti in vendita (quasi la metà dell'intera provincia)
e il maggior numero di annunci per questa tipologia sono relativi proprio alla zona di Città Studi.
La richiesta media nella zona dove sorge l'appartamento (Città Studi pressi Via Sangallo) è pari a
5.920 €/m², non troppo distante dai valori medi cittadini per appartamenti in vendita.
Possiamo inoltre considerare che in tutta la città negli ultimi 6 mesi, i prezzi per appartamenti in vendita sono
in sostanziale aumento (+6,46%).
NOVITÀ Il risultato che vedi dipende dai dati che siamo riusciti ad estrarre dall'annuncio: ottieni una stima più accuranta di questo immobile, inserendo dati più precisi.
N.B. L'Opinione di Caasa® è un servizio sperimentale realizzato tramite tecniche di Intelligenza Artificiale, fornito senza alcuna garanzia di correttezza e completezza. Leggi il disclaimer o segnalaci un problema.
IMMAGINI
IN SINTESI
PROPOSTO DA:
Prospettocasa
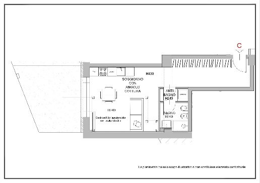
DESCRIZIONE
di nuova costruzione di nuova costruzione
Via San Gallo 39, Milano – zona Città Studi / Argonne In vendita esclusive residenze di nuova realizzazione, in un contesto tranquillo e riservato ma perfettamente collegato al centro città, grazie alla nuova MM4 Argonne a pochi passi. ???? Sangallo39 è un progetto contemporaneo e sostenibile che unisce design, comfort abitativo e massima efficienza energetica (Classe A). Disponibili solo 9 unità abitative di varie metrature, tutte studiate per offrire ambienti razionali, luminosi e di pregio, con finiture di alta gamma. Caratteristiche principali: Nuova costruzione in Classe A Soluzioni con giardini privati Ampie vetrate e spazi a doppia altezza Impianti tecnologici evoluti a basso consumo Finiture personalizzabili e materiali di pregio Tagli funzionali senza sprechi di spazio ???? La zona è in forte crescita, a pochi minuti da Città Studi e ben servita da scuole, negozi, piste ciclabili e aree verdi. ✅ Ideale per chi cerca tranquillità senza rinunciare ai collegamenti, massimo comfort abitativo e un investimento sicuro nel cuore di Milano. ???? Per ricevere brochure, planimetrie o fissare un appuntamento: Chiama ora il 333 41 32 407




