Valutazione immobiliare indipendente, accurata e gratuita
Appartamento in vendita a Milano in zona Crescenzago a 335.000 € (cod.652c41a0)
Caasa non ha sufficienti informazioni per commentare l'appartamento a Milano in zona Crescenzago - 652c41a0.
Analisi immobiliare
I dati in posseso di Caasa per quest'immobile sono insufficienti, inaffidabili o contraddittori per proporre un'analisi attendibile.
Mercato immobiliare a Milano
Per quanto riguarda più in generale la città di Milano, sono presenti al momento ben oltre 20.000 annunci per
appartamenti in vendita (quasi la metà dell'intera provincia)
e il maggior numero di annunci per questa tipologia sono relativi alla zona di Città Studi, mentre nella zona di Crescenzago è presente un numero significativamente inferiore di annunci.
La richiesta media nella zona dove sorge l'appartamento (Crescenzago pressi Via Privata Giovanni Battista Prandina) è pari a
3.865 €/m², non troppo distante dai valori medi cittadini per appartamenti in vendita.
Per quanto riguarda la dinamica dei prezzi, negli ultimi 6 mesi i prezzi medi in tutta la città per appartamenti in vendita sono
in sostanziale aumento (+6,46%).
NOVITÀ Il risultato che vedi dipende dai dati che siamo riusciti ad estrarre dall'annuncio: ottieni una stima più accuranta di questo immobile, inserendo dati più precisi.
N.B. L'Opinione di Caasa® è un servizio sperimentale realizzato tramite tecniche di Intelligenza Artificiale, fornito senza alcuna garanzia di correttezza e completezza. Leggi il disclaimer o segnalaci un problema.
IMMAGINI
IN SINTESI
PROPOSTO DA:
Cerchiara Servizi Immobiliari
DESCRIZIONE
di recente ristrutturazione di recente ristrutturazione con termocondizionamento con ascensore da ristrutturare di nuova costruzione
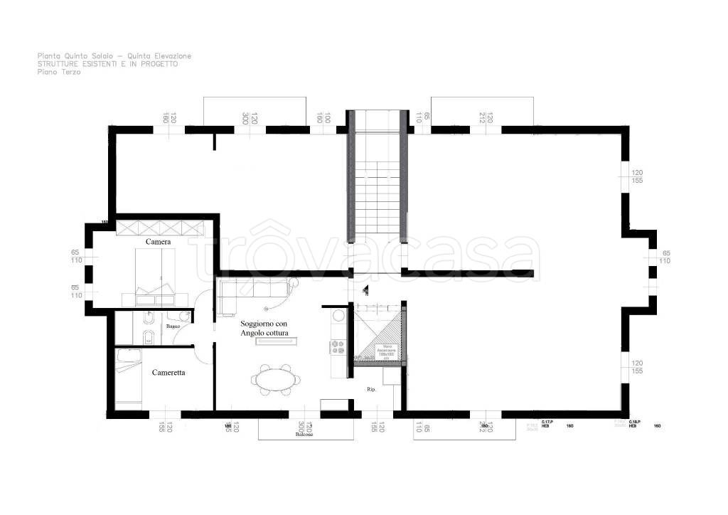
Proponiamo in vendita appartamento mansardato di tre locali di 75 mq situati in via Prandina 33, Milano, all’interno di uno stabile degli anni ’50 che sarà oggetto di completa ristrutturazione ed efficientamento energetico. Consegna in Interventi previsti sulla palazzina: - Rifacimento completo della facciata con installazione di cappotto termico - Sostituzione e ammodernamento dell’impiantistica condominiale - Installazione di ascensore di nuova generazione L' appartamento è mansardato con altezza 3 metri il colmo e altezza 1,80 metri di gronda, verrà consegnato completamente rinnovato e pronto per l’ingresso al momento del rogito. Opere interne agli appartamenti: - Nuovi impianti: riscaldamento a pavimento con pannelli radianti e impianto elettrico a norma e certificato - Nuove pavimentazioni - Infissi esterni in PVC con doppi vetri ad elevato isolamento termoacustico - Porte interne nuove - Portoncino d’ingresso blindato - Impianto videocitofonico - Impianto di aria condizionata, Possibilità di box singolo in loco al prezzo di Euro 25.000, 00 cadauno. Tempistiche dei lavori: Consegna appartamenti (fine lavori interni): a partire da Febbraio 2026; Ogni appartamento potrà essere disponibile alla consegna completo di arredamento interno (cucina, soggiorno, camera da letto e bagno). Prezzo arredo escluso. Fine lavori esterni (facciata e parti comuni): Fine 2026. Il presente annuncio non è da ritenersi valido ai fini contrattuali, le informazioni qui contenute sono del tutto indicative


