Valutazione immobiliare indipendente, accurata e gratuita
L'Opinione di Caasa® per l'appartamento in affitto a Milano in zona Città Studi a 1.500 € mese (cod.650adb45)
Secondo Caasa, per l'appartamento a Milano in zona Città Studi, la richiesta di 1.500 € mese è leggermente svantaggiosa rispetto agli annunci simili.
Analisi immobiliare
L'appartamento, situato vicino a Via Cesare Beruto nella zona OMI D12, è proposto in affitto a
1.500 € mese per una
superficie commerciale di
70 m² e quindi ad un prezzo per metro quadrato pari a
21,4 €/m²
.
Tale prezzo
è un po' più alto di quello stimato da Caasa per immobili in affitto simili per tipologia, caratteristiche, classe energetica e localizzati nella stessa zona OMI, che è compreso tra
19,1 €/m² mese e
21 €/m² mese.
La conoscenza con buona approssimazione della localizzazione dell'immobile ha consentito di utilizzare come raffronto i dati medi elaborati esattamente nella zona OMI di appertenenza (PIOLA, ARGONNE, CORSICA) per appartamenti (da 17 €/m² mese a 27,5 €/m² mese) e per bivani (da 17,4 €/m² mese a 26,9 €/m² mese). Inoltre, Caasa ha potuto affinare la stima anche con la conoscenza della classe energetica (G) oltre che dello stato dell'immobile (da ristrutturare) e di alcune caratteristiche significative come l'arredamento. Per queste considerazioni i valori accettabili per l'offerta costituiscono un intervallo abbastanza limitato.
Mercato immobiliare a Milano
Per quanto riguarda più in generale la città di Milano, sono presenti al momento ben oltre 30.000 annunci per
appartamenti in affitto (oltre l'80% dell'intera provincia)
e il maggior numero di annunci per questa tipologia sono relativi alla zona di Porta Romana, ma anche la zona di Città Studi è molto attiva dal punto di vista immobiliare.
La richiesta media nella zona dove sorge l'appartamento (Città Studi pressi Via Cesare Beruto) è pari a
22,5 €/m² mese, non troppo distante dai valori medi cittadini per appartamenti in affitto.
Relativamente alla dinamica dei prezzi, possiamo dire che negli ultimi 6 mesi i prezzi medi in tutta la città per appartamenti in affitto sono
in leggero aumento (+2,61%).
NOVITÀ Il risultato che vedi dipende dai dati che siamo riusciti ad estrarre dall'annuncio: ottieni una stima più accuranta di questo immobile, inserendo dati più precisi.
N.B. L'Opinione di Caasa® è un servizio sperimentale realizzato tramite tecniche di Intelligenza Artificiale, fornito senza alcuna garanzia di correttezza e completezza. Leggi il disclaimer o segnalaci un problema.
IMMAGINI
IN SINTESI
DESCRIZIONE
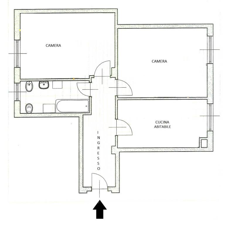
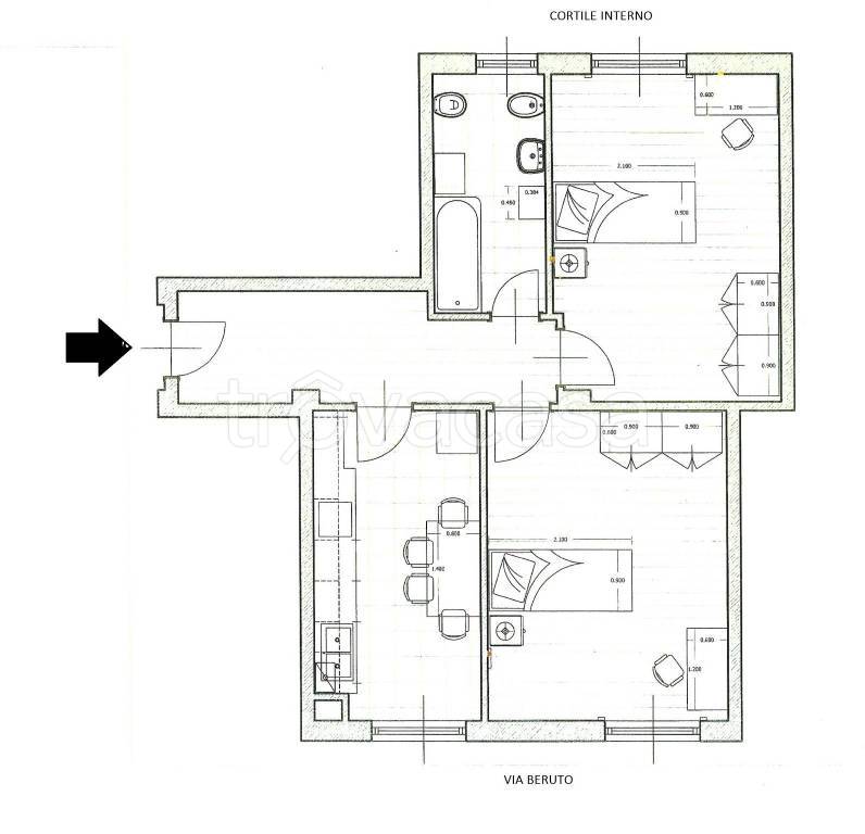
da ristrutturare con arredamento con cucina abitabile da ristrutturare
Città Studi - Via Beruto - all'interno di uno stabile signorile degli anni '60, proponiamo in locazione un ampio bilocale in ottime condizioni interne. Si compone di un ingresso con corridoio, cucina abitabile, due camera da letto e bagno. ARREDATO! Ideale per studenti o giovani lavoratori. Disponibile da subito. 02/70603515 — Immobiliare VIRGA Informazioni e immagini contenute in questo annuncio hanno scopo puramente informativo e non costituiscono, in alcun caso, elemento contrattuale


