Valutazione immobiliare indipendente, accurata e gratuita
L'Opinione di Caasa® per l'appartamento in vendita a Melzo a 200.000 € (cod.656d9bb5)
Secondo Caasa, per l'appartamento in vendita a Melzo, la richiesta di 200.000 € è leggermente vantaggiosa rispetto agli annunci simili.
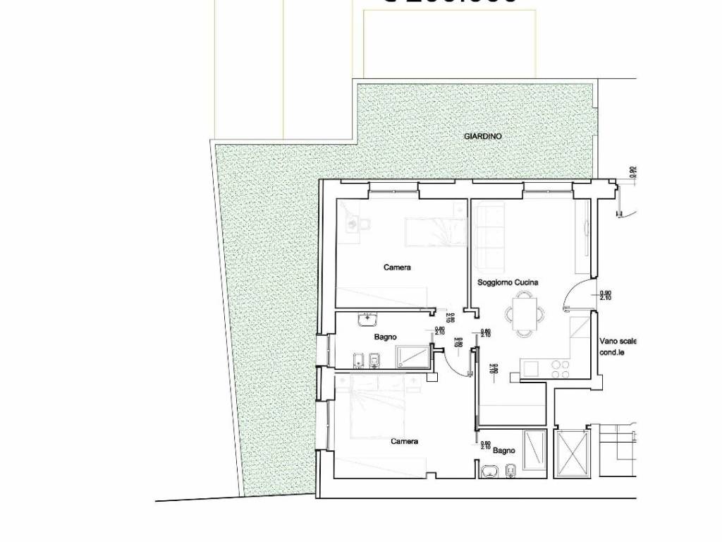
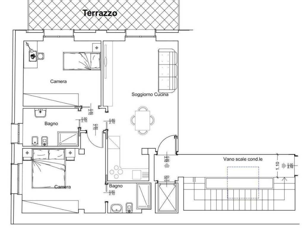
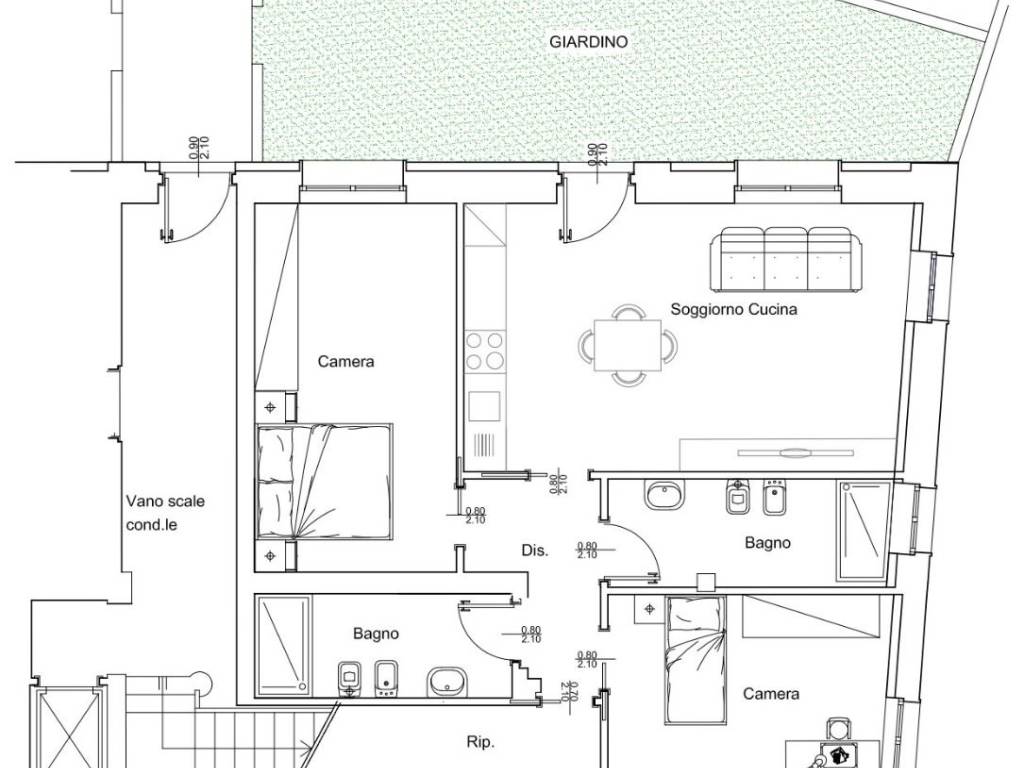
Analisi immobiliare
L'appartamento, situato nella zona OMI B1, è proposto in vendita a
200.000 € per una
superficie commerciale di
90 m² e quindi ad un prezzo per metro quadrato pari a
2222 €/m²
.
Tale prezzo
è un po' più basso di quello stimato da Caasa per immobili in vendita simili per tipologia e caratteristiche, presenti nella stessa zona, che è compreso tra
2.360 €/m² e
2.544 €/m².
Presa in considerazione la posizione dell'appartamento sono stati utilizzati come raffronto i valori medi nelle zone limitrofe . Caasa non è stata in grado di determinare la classe energetica, ma ad affinare la stima ha contribuito però anche lo stato dell'immobile (di recente ristrutturazione). Per questi motivi i valori possibili per l'offerta costituiscono un intervallo relativamente ampio.
Mercato immobiliare a Melzo
Per quanto riguarda più in generale la città di Melzo, sono presenti al momento più di 300 annunci per
appartamenti in vendita (meno dell'1% dell'intera provincia) .
Relativamente alla dinamica dei prezzi, possiamo dire che negli ultimi 6 mesi i prezzi medi in tutta la città per appartamenti in vendita sono
in forte aumento (+11,60%).
NOVITÀ Il risultato che vedi dipende dai dati che siamo riusciti ad estrarre dall'annuncio: ottieni una stima più accuranta di questo immobile, inserendo dati più precisi.
N.B. L'Opinione di Caasa® è un servizio sperimentale realizzato tramite tecniche di Intelligenza Artificiale, fornito senza alcuna garanzia di correttezza e completezza. Leggi il disclaimer o segnalaci un problema.
IMMAGINI
IN SINTESI
PROPOSTO DA:
CENTRO CASA CERNUSCO SRL
