Valutazione immobiliare indipendente, accurata e gratuita
L'Opinione di Caasa® per l'appartamento in vendita a Melzo a 200.000 € (cod.65465feb)
Secondo Caasa, per l'appartamento in vendita a Melzo, la richiesta di 200.000 € è significativamente vantaggiosa rispetto agli annunci simili.
Analisi immobiliare
L'appartamento, situato nella zona OMI B1, è proposto in vendita a
200.000 € per una
superficie commerciale di
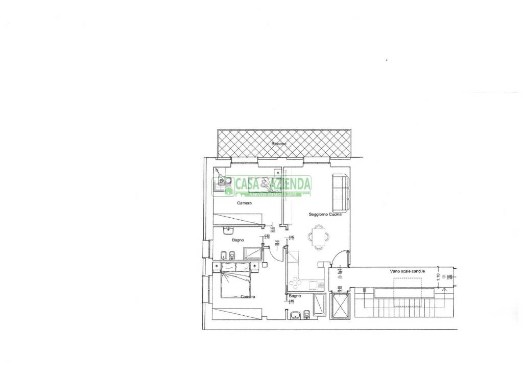
83 m² e quindi ad un prezzo per metro quadrato pari a
2409 €/m²
.
Tale valore
è decisamente inferiore a quello stimato da Caasa per immobili in vendita simili per tipologia e caratteristiche, presenti nella stessa zona, che è compreso tra
2.788 €/m² e
2.966 €/m².
Vista la posizione dell'appartamento sono stati utilizzati come raffronto i valori medi nelle zone limitrofe . Caasa non è stata in grado di determinare la classe energetica, ma ad affinare la stima hanno contribuito però anche lo stato dell'immobile (di nuova costruzione) e la presenza di alcune caratteristiche significative come il posto auto o la presenza dell'ascensore. Per questi motivi i valori possibili per l'offerta costituiscono un intervallo relativamente ampio.
Mercato immobiliare a Melzo
Per quanto riguarda più in generale la città di Melzo, sono presenti al momento più di 300 annunci per
appartamenti in vendita (meno dell'1% dell'intera provincia) .
La dinamica dei prezzi in tutta la città mostra che negli ultimi 6 mesi, i prezzi per appartamenti in vendita sono
in forte aumento (+10,04%).
NOVITÀ Il risultato che vedi dipende dai dati che siamo riusciti ad estrarre dall'annuncio: ottieni una stima più accuranta di questo immobile, inserendo dati più precisi.
N.B. L'Opinione di Caasa® è un servizio sperimentale realizzato tramite tecniche di Intelligenza Artificiale, fornito senza alcuna garanzia di correttezza e completezza. Leggi il disclaimer o segnalaci un problema.
IMMAGINI
IN SINTESI
PROPOSTO DA:
F1 SAS AFFILIATO TECNOCASA IMMOBILI PER L'IMPRESA
DESCRIZIONE
di nuova costruzione con posto auto con terrazza di nuova costruzione con balcone di recente ristrutturazione con ascensore
IN CENTRO: Appartamenti di nuova ristrutturazione con consegna Aprile 2026. In piccola palazzina di soli 4 appartamenti, appartamento di 3 locali al piano primo con ascensore composto da soggiorno con cucina a vista, due camere matrimoniali, due bagni e terrazzino di 10 mq. FINITURE A SCELTA DELLA PARTE ACQUIRENTE. Ottimo capitolato. Predisposizione aria condizionata ed antifurto. Possibilità di acquistare il posto auto. Possibilità di permuta del vostro immobile


