Valutazione immobiliare indipendente, accurata e gratuita
L'Opinione di Caasa® per l'appartamento in vendita a Melegnano a 462.000 € (cod.6578e693)
Secondo Caasa, per l'appartamento in vendita a Melegnano, la richiesta di 462.000 € è leggermente vantaggiosa rispetto agli annunci simili.
Analisi immobiliare
L'appartamento, situato nella zona OMI B1, è proposto in vendita a
462.000 € per una
superficie commerciale di
157 m² e quindi ad un prezzo per metro quadrato pari a
2942 €/m²
.
Tale valore
è leggeremente più conveniente di quello stimato da Caasa per immobili in vendita simili per tipologia e caratteristiche, presenti nella stessa zona, che è compreso tra
3.123 €/m² e
3.357 €/m².
Vista la posizione dell'appartamento sono stati utilizzati come raffronto i valori medi nelle zone limitrofe . Caasa non è stata in grado di determinare la classe energetica, ma ad affinare la stima hanno contribuito però anche lo stato dell'immobile (di nuova costruzione) e la presenza di alcune caratteristiche significative come la disponibilità di una cantina, la presenza dell'ascensore o il posto auto. Per i motivi esposti i valori possibili per l'offerta costituiscono un intervallo relativamente ampio.
Mercato immobiliare a Melegnano
Per quanto riguarda più in generale la città di Melegnano, sono presenti al momento più di 200 annunci per
appartamenti in vendita (meno dell'1% dell'intera provincia) .
La dinamica dei prezzi in tutta la città mostra che negli ultimi 6 mesi, i prezzi per appartamenti in vendita sono
in deciso aumento (+8,66%).
NOVITÀ Il risultato che vedi dipende dai dati che siamo riusciti ad estrarre dall'annuncio: ottieni una stima più accuranta di questo immobile, inserendo dati più precisi.
N.B. L'Opinione di Caasa® è un servizio sperimentale realizzato tramite tecniche di Intelligenza Artificiale, fornito senza alcuna garanzia di correttezza e completezza. Leggi il disclaimer o segnalaci un problema.
IMMAGINI
IN SINTESI
PROPOSTO DA:
Affiliato Tecnocasa: STUDIO LEGNANO
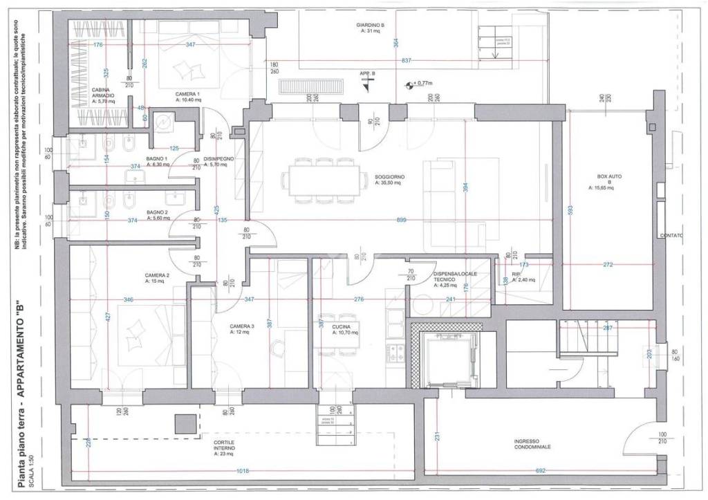
DESCRIZIONE
di nuova costruzione con cantina con posto auto di nuova costruzione con giardino con termocondizionamento con ascensore con cortile
MELEGNANO via Dezza nuova costruzione Nel cuore del paese proponiamo palazzina di nuova costruzione con soli 5 appartamenti di 4 e 5 locali, con possibilità di terrazzi e giardini privati, dove per ogni piano verrà realizzato un solo appartamento. La palazzina avrà ascensore, finiture di pregio, possibilità di personalizzazione, elevati standard costruttivi e di efficientamento energetico come l' installazione di pannelli fotovoltaici individuali con potenza di 2 kW. Gli immobili saranno dotati di impianto termico autonomo ad aria per la climatizzazione degli ambienti in pompa di calore per riscaldamento e raffrescamento. Saranno muniti inoltre di un impianto di ventilazione meccanica controllata con recupero di calore. Consegna prevista estate 2027 Al piano terra proponiamo appartamento di 4 locali con spazi ampi e ben distribuiti, dotato di giardino e cortile privato. Il soggiorno è ampio e affaccia sul giardino, la cucina è abitabile, con dispensa e affaccio sul cortile. Le camere da letto sono tre, di cui una con cabina armadio e affaccio sul giardino. Ci sono poi due moderni bagni finestrati e un comodo ripostiglio. Completano la proprietà il box e la cantina, c'è la possibilità di acquisto del posto auto


