Valutazione immobiliare indipendente, accurata e gratuita
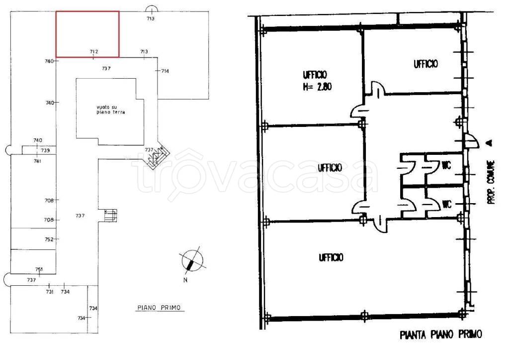
Ufficio in vendita a Magenta a 108.000 € (cod.64fa6d2f)
Caasa non ha sufficienti informazioni per commentare l'ufficio in vendita a Magenta - 64fa6d2f.
	Analisi immobiliare
	
	I dati in posseso di Caasa per quest'immobile sono insufficienti, inaffidabili o contraddittori per proporre un'analisi attendibile.
	
	Mercato immobiliare a Magenta
	
	Per quanto riguarda più in generale la città di Magenta, sono presenti al momento più di cento annunci per 
		uffici in vendita (meno del 5% dell'intera provincia) .
	
	
	
	La dinamica dei prezzi in tutta la città mostra che negli ultimi 6 mesi, i prezzi per uffici in vendita sono 
		in forte aumento (+32,59%).
	
	
	
NOVITÀ Il risultato che vedi dipende dai dati che siamo riusciti ad estrarre dall'annuncio: ottieni una stima più accuranta di questo immobile, inserendo dati più precisi.
N.B. L'Opinione di Caasa® è un servizio sperimentale realizzato tramite tecniche di Intelligenza Artificiale, fornito senza alcuna garanzia di correttezza e completezza. Leggi il disclaimer o segnalaci un problema.
                              
                              
                              
                              
                              
                              
                              
                              
                              
                              
                              
                              
                              
                              
                              