Valutazione immobiliare indipendente, accurata e gratuita
Appartamento in vendita a Lainate a 138.750 € (cod.65925142)
Caasa non ha sufficienti informazioni per commentare l'appartamento in vendita a Lainate - 65925142.
Analisi immobiliare
I dati in posseso di Caasa per quest'immobile sono insufficienti, inaffidabili o contraddittori per proporre un'analisi attendibile.
Mercato immobiliare a Lainate
Per quanto riguarda più in generale la città di Lainate, sono presenti al momento quasi 500 annunci per
appartamenti in vendita (meno dell'1% dell'intera provincia)
e il maggior numero di annunci per questa tipologia sono relativi alla zona di Pagliera.
Possiamo inoltre considerare che in tutta la città negli ultimi 6 mesi, i prezzi per appartamenti in vendita sono
in deciso aumento (+8,88%).
NOVITÀ Il risultato che vedi dipende dai dati che siamo riusciti ad estrarre dall'annuncio: ottieni una stima più accuranta di questo immobile, inserendo dati più precisi.
N.B. L'Opinione di Caasa® è un servizio sperimentale realizzato tramite tecniche di Intelligenza Artificiale, fornito senza alcuna garanzia di correttezza e completezza. Leggi il disclaimer o segnalaci un problema.
IMMAGINI
IN SINTESI
DESCRIZIONE
di nuova costruzione di nuova costruzione con posto auto con cantina con balcone con garage con angolo cottura in asta giudiziaria
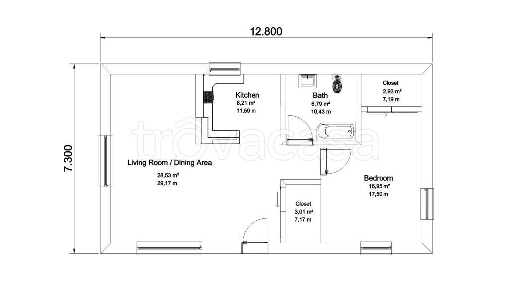
Asta appartamento a Lainate (MI) [SY611756] Via Luigi Einaudi, 4, 20045 Lainate MI, Italia Piena proprietà superficiaria di appartamento al piano secondo, composto da ingresso-soggiorno con angolo cucina, due camere, bagno, ripostiglio, due balconi o […]
