Valutazione immobiliare indipendente, accurata e gratuita
Appartamento in vendita a Gorgonzola a 48.000 € (cod.6542dde1)
Caasa non ha sufficienti informazioni per commentare l'appartamento in vendita a Gorgonzola - 6542dde1.
Analisi immobiliare
I dati in posseso di Caasa per quest'immobile sono insufficienti, inaffidabili o contraddittori per proporre un'analisi attendibile.
Mercato immobiliare a Gorgonzola
Per quanto riguarda più in generale la città di Gorgonzola, sono presenti al momento più di 200 annunci per
appartamenti in vendita (meno dell'1% dell'intera provincia) .
Relativamente alla dinamica dei prezzi, possiamo dire che negli ultimi 6 mesi i prezzi medi in tutta la città per appartamenti in vendita sono
in sostanziale aumento (+7,09%).
NOVITÀ Il risultato che vedi dipende dai dati che siamo riusciti ad estrarre dall'annuncio: ottieni una stima più accuranta di questo immobile, inserendo dati più precisi.
N.B. L'Opinione di Caasa® è un servizio sperimentale realizzato tramite tecniche di Intelligenza Artificiale, fornito senza alcuna garanzia di correttezza e completezza. Leggi il disclaimer o segnalaci un problema.
IMMAGINI
IN SINTESI
PROPOSTO DA:
Geom. La Porta
DESCRIZIONE
di nuova costruzione di nuova costruzione con giardino con cortile in asta giudiziaria
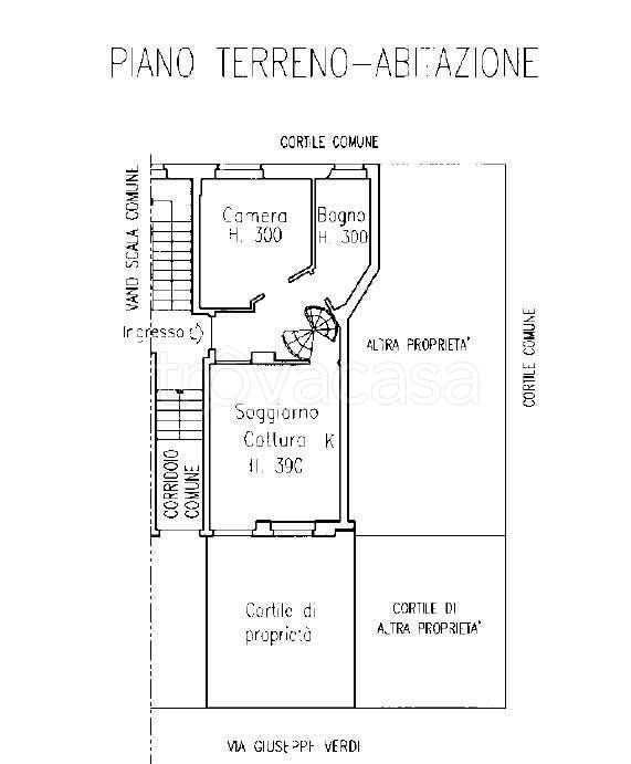
DATA ASTA 05/03/2026 ASINCRONA Gorgonzola Via Giuseppe Verdi, 5 Unità immobiliare ad uso abitativo disposta ai piani terra e seminterrato (T/S1), composta da due locali oltre servizi. L’immobile è dotato di locale deposito e di cortile pertinenziale, […]
