Valutazione immobiliare indipendente, accurata e gratuita
L'Opinione di Caasa® per l'appartamento in vendita a Dresano a 260.000 € (cod.64fe6002)
Secondo Caasa, per l'appartamento in vendita a Dresano, la richiesta di 260.000 € è leggermente vantaggiosa rispetto agli annunci simili.
Analisi immobiliare
L'appartamento, situato nella zona OMI B1, è proposto in vendita a
260.000 € per una
superficie commerciale di
108 m² e quindi ad un prezzo per metro quadrato pari a
2407 €/m²
.
Questo prezzo
è di poco inferiore a quello stimato da Caasa per immobili in vendita simili per tipologia e caratteristiche, presenti nella stessa zona, che è compreso tra
2.492 €/m² e
2.674 €/m².
Data la posizione dell'appartamento sono stati utilizzati come raffronto i valori medi nelle zone limitrofe . Caasa non è stata in grado di determinare la classe energetica, ma ad affinare la stima hanno contribuito però anche lo stato dell'immobile (di nuova costruzione) e la presenza di alcune caratteristiche significative come la disponibilità di una cantina o il posto auto. Per queste ragioni l'intervallo dei valori possibili per l'offerta è relativamente ampio.
Mercato immobiliare a Dresano
Per quanto riguarda più in generale il comune di Dresano, sono presenti al momento più di trenta annunci per
appartamenti in vendita (meno dell'1% dell'intera provincia) .
Possiamo inoltre considerare che in tutto il comune negli ultimi 6 mesi, i prezzi per appartamenti in vendita sono
in leggero aumento (+2,46%).
NOVITÀ Il risultato che vedi dipende dai dati che siamo riusciti ad estrarre dall'annuncio: ottieni una stima più accuranta di questo immobile, inserendo dati più precisi.
N.B. L'Opinione di Caasa® è un servizio sperimentale realizzato tramite tecniche di Intelligenza Artificiale, fornito senza alcuna garanzia di correttezza e completezza. Leggi il disclaimer o segnalaci un problema.
IMMAGINI
IN SINTESI
PROPOSTO DA:
STUDIO CASA URGNANO
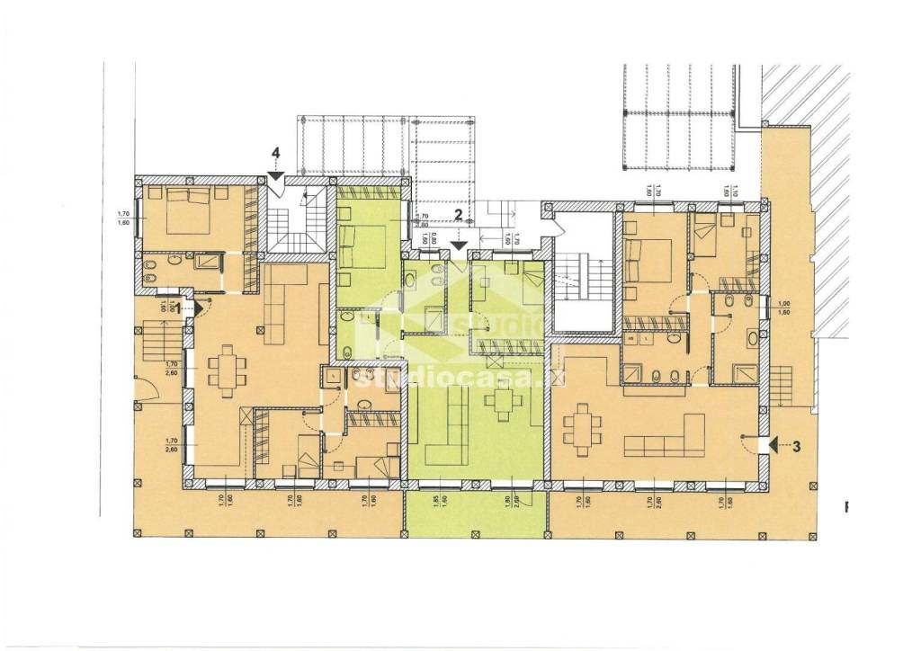
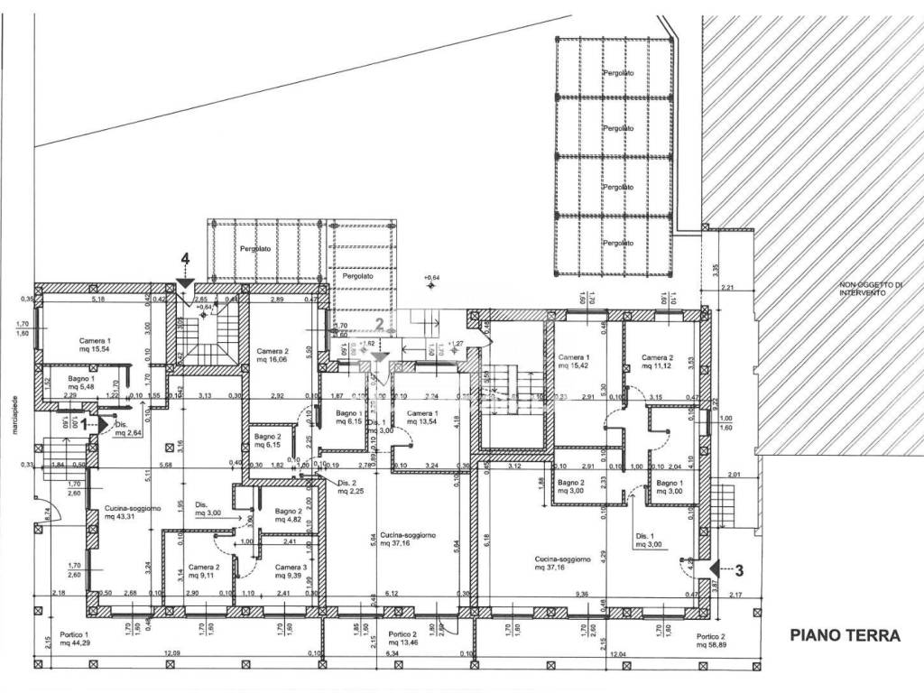
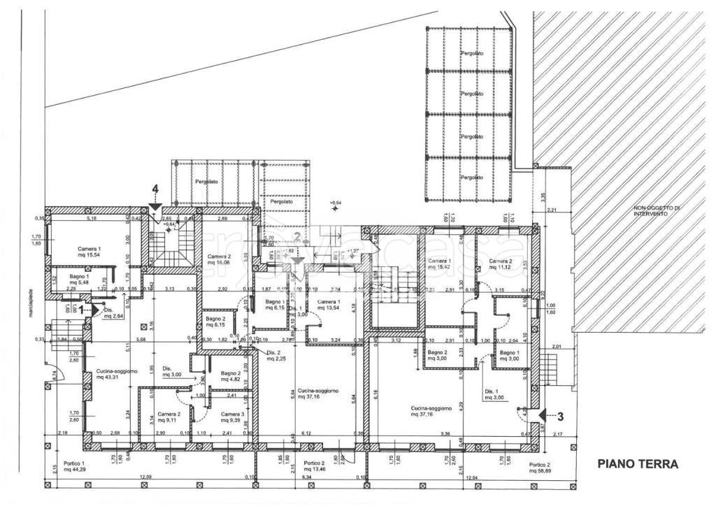
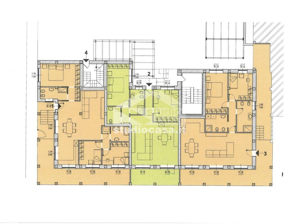
DESCRIZIONE
di nuova costruzione con posto auto con cantina di nuova costruzione
FUTURA NUOVA REALIZZAZIONE di appartamenti in una mini palazzina posizionata nel centro del paese di sole 6 famiglie senza spese condominiali, appartamento posto al piano terra con ingresso indipendente e porticato circostante l'abitazione composto da soggiorno con zona cucina che accedono ad un porticato, disimpegno notte con camera matrimoniale, doppi servizi e seconda camera. Completa la proprietà la cantina ed il posto auto privato. L'appartamento verrà realizzato nel rispetto di tutto le nuove normative di costruzione con ottime finiture. Euro 260.000 pagamenti personalizzarti. Consegna AUTUNNO 2026. CLASSE A. Possibilità di seconda soluzione analoga ma con terza camera ad Euro 270.000

