Valutazione immobiliare indipendente, accurata e gratuita
L'Opinione di Caasa® per l'appartamento in vendita a Cormano a 205.000 € (cod.65a3cedf)
Secondo Caasa, per l'appartamento in vendita a Cormano, la richiesta di 205.000 € è equilibrata rispetto agli annunci simili.
Analisi immobiliare
L'appartamento, situato nella zona OMI D1, è proposto in vendita a
205.000 € per una
superficie commerciale di
90 m² e quindi ad un prezzo per metro quadrato pari a
2277 €/m²
.
Tale valore
è in linea con quello stimato da Caasa per immobili in vendita simili per tipologia e caratteristiche e localizzati nella stessa zona OMI, che è compreso tra
2.109 €/m² e
2.287 €/m².
Grazie alla conoscenza con buona approssimazione della localizzazione dell'immobile, è stato possibile utilizzare come raffronto i dati medi elaborati esattamente nella zona OMI di appertenenza (STATALE DEI GIOVI, BRUSUGLIO). Anche se Caasa non è riuscita a determinare la classe energetica, ad affinare la stima hanno contribuito anche lo stato dell'immobile (da ristrutturare) e la presenza di alcune caratteristiche significative come la disponibilità di una cantina. Per i motivi esposti i valori accettabili per l'offerta costituiscono un intervallo relativamente limitato.
Mercato immobiliare a Cormano
Per quanto riguarda più in generale la città di Cormano, sono presenti al momento più di 200 annunci per
appartamenti in vendita (meno dell'1% dell'intera provincia)
e il maggior numero di annunci per questa tipologia sono relativi alla zona di Brusuglio.
La dinamica dei prezzi in tutta la città mostra che negli ultimi 6 mesi, i prezzi per appartamenti in vendita sono
in aumento (+4,97%).
NOVITÀ Il risultato che vedi dipende dai dati che siamo riusciti ad estrarre dall'annuncio: ottieni una stima più accuranta di questo immobile, inserendo dati più precisi.
N.B. L'Opinione di Caasa® è un servizio sperimentale realizzato tramite tecniche di Intelligenza Artificiale, fornito senza alcuna garanzia di correttezza e completezza. Leggi il disclaimer o segnalaci un problema.
IMMAGINI
IN SINTESI
PROPOSTO DA:
Tempocasa Cormano - AD Resort
DESCRIZIONE
da ristrutturare con cantina con cucina abitabile da ristrutturare
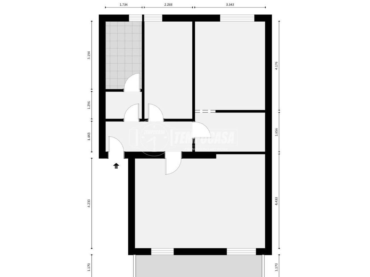
Rif: 442 - Tempocasa propone in vendita Trilocale di 90 mq al piano primo, attualmente composto da: ingresso, soggiorno, cucina abitabile, due camere, doppi servizi, ripostiglio e cantina. L’immobile è da ristrutturare e viene proposto con un progetto completo di ridistribuzione degli spazi interni. Le immagini pubblicate sono render di progetto a scopo illustrativo e mostrano il risultato dopo la ristrutturazione. Non rappresentano lo stato attuale dell’immobile. Le immagini sono render indicativi e potrebbero differire dal risultato finale. Non costituiscono vincolo contrattuale. Il progetto prevede la trasformazione in un moderno open space con zona living, due camere, due bagni e ampi spazi contenitivi. Possibilità di personalizzare finiture e distribuzione. LE NOSTRE CASE SONO TUTTE IN ESCLUSIVA, LE VEDI SOLO CON NOI! Per appuntamenti o per una consulenza di vendita gratuita del vostro immobile contattaci al nostro numero 0266301634, oppure potete trovarci presso lo Studio Immobiliare TEMPOCASA - Via Vittorio Veneto 12, 20032 Cormano - WhatsApp 3938808980

