Valutazione immobiliare indipendente, accurata e gratuita
Casa indipendente in vendita a Cologno Monzese a 750.000 € (cod.656933ff)
Caasa non ha sufficienti informazioni per commentare la casa indipendente in vendita a Cologno Monzese - 656933ff.
Analisi immobiliare
I dati in posseso di Caasa per quest'immobile sono insufficienti, inaffidabili o contraddittori per proporre un'analisi attendibile.
Mercato immobiliare a Cologno Monzese
Per quanto riguarda più in generale la città di Cologno Monzese, sono presenti al momento più di 150 annunci per
case indipendenti in vendita (meno dell'1% dell'intera provincia)
e il maggior numero di annunci per questa tipologia sono relativi alla zona di San Maurizio al Lambro.
La dinamica dei prezzi in tutta la città mostra che negli ultimi 6 mesi, i prezzi per case indipendenti in vendita sono
in sostanziale aumento (+5,30%).
NOVITÀ Il risultato che vedi dipende dai dati che siamo riusciti ad estrarre dall'annuncio: ottieni una stima più accuranta di questo immobile, inserendo dati più precisi.
N.B. L'Opinione di Caasa® è un servizio sperimentale realizzato tramite tecniche di Intelligenza Artificiale, fornito senza alcuna garanzia di correttezza e completezza. Leggi il disclaimer o segnalaci un problema.
IMMAGINI
IN SINTESI
PROPOSTO DA:
MM Real Estate
DESCRIZIONE
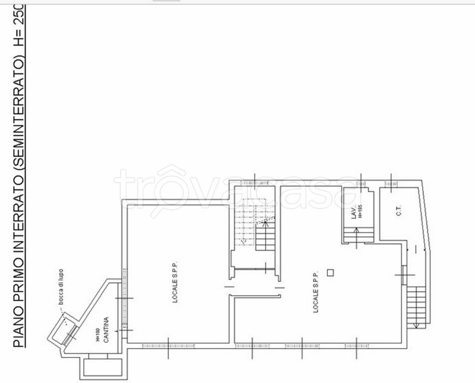
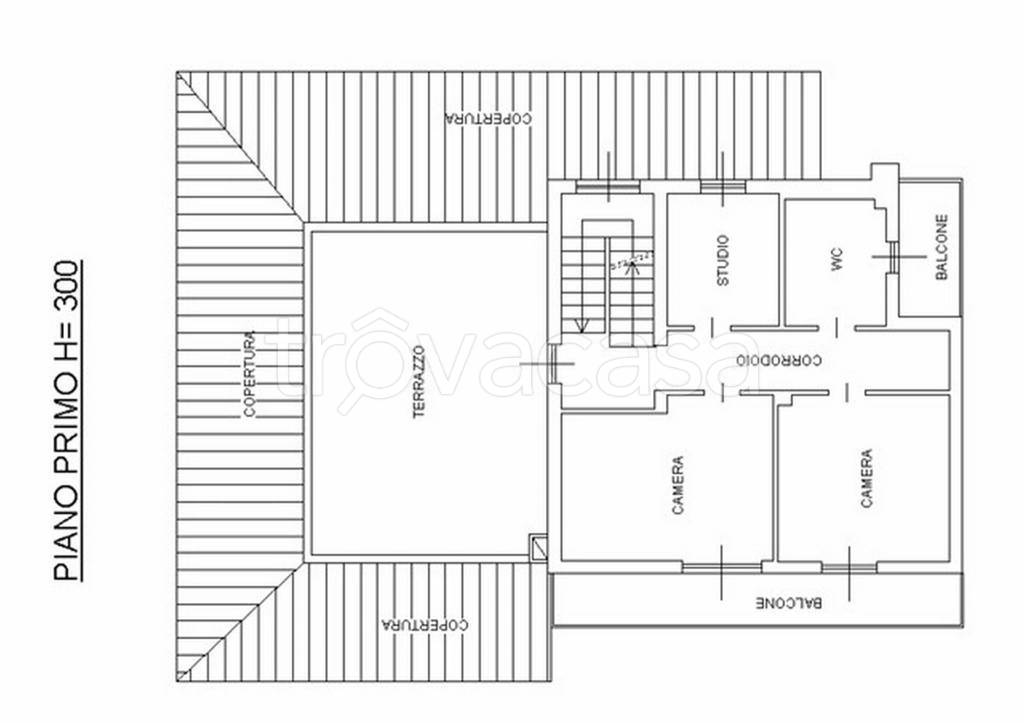
da ristrutturare con terrazza con balcone con giardino da ristrutturare nuda proprietà
In Esclusiva A 700 metri dalla fermata della metropolitana linea verde MM COLOGNO NORD, vendiamo Nuda proprietà di Signora di 96 anni e intera proprietà Figli. Trattasi, come da planimetrie allegate di Villa allo stato originale costruita nel 1976 posta su 3 piani più locale semiterrato. Splendido portico con giardino piantumato di oltre 400 mq. La villa è composta da Piano terra circondato da giardino: portico da cui si entra in soggiorno, disimpegno, camera cucina e bagno, balcone e terrazzino; Piano Primo: corridoio che porta in camera, camera, studio, bagno 2 balconi e terrazzo; Piano secondo: sottotetto con lavanderia; Piano interrato: 2 grandi locali SPP e lavanderia. IMMOBILE E' GESTITO DA MM Real Estate- Mobile 335 5746857 , La presente scheda non costituisce forma di contratto, le informazioni in questa inserzione sono indicative e non possono essere utilizzate come parte integrante in un eventuale contratto di vendita o di locazione. La presente non vincola in alcun modo la Proprietà e la nostra Società. MM Real Estate via farini 61 Milano; https://www.mmrealestate.it/ ; info@mmrealestate.it ***POSSIBILITA' EDIFICATORIA DA VERIFICARE CON TECNICO ABILITATO


