Valutazione immobiliare indipendente, accurata e gratuita
Appartamento in vendita a Cernusco sul Naviglio a 703.152 € (cod.657e6a48)
Caasa non ha sufficienti informazioni per commentare l'appartamento in vendita a Cernusco sul Naviglio - 657e6a48.
Analisi immobiliare
I dati in posseso di Caasa per quest'immobile sono insufficienti, inaffidabili o contraddittori per proporre un'analisi attendibile.
Mercato immobiliare a Cernusco sul Naviglio
Per quanto riguarda più in generale la città di Cernusco sul Naviglio, sono presenti al momento quasi 500 annunci per
appartamenti in vendita (meno dell'1% dell'intera provincia) .
Per quanto riguarda la dinamica dei prezzi, negli ultimi 6 mesi i prezzi medi in tutta la città per appartamenti in vendita sono
in debole aumento (+1,72%).
NOVITÀ Il risultato che vedi dipende dai dati che siamo riusciti ad estrarre dall'annuncio: ottieni una stima più accuranta di questo immobile, inserendo dati più precisi.
N.B. L'Opinione di Caasa® è un servizio sperimentale realizzato tramite tecniche di Intelligenza Artificiale, fornito senza alcuna garanzia di correttezza e completezza. Leggi il disclaimer o segnalaci un problema.
IMMAGINI
IN SINTESI
PROPOSTO DA:
Accordo Casa Srl
DESCRIZIONE
con cantina con giardino con cucina abitabile in asta giudiziaria
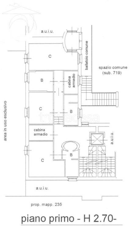
Accordo Casa propone in vendita all'asta, lotto 1: appartamento su più livelli terra/cielo e due boxes. L'immobile è così composto: - P.T. ingresso, doppio soggiorno, cucina abitabile e bagno; - P.1: tre camere da letto, due cabine armadio e tre bagn […]
