Valutazione immobiliare indipendente, accurata e gratuita
Casa indipendente in vendita a Cassinetta di Lugagnano a 164.000 € (cod.6548ec42)
Caasa non ha sufficienti informazioni per commentare la casa indipendente a Cassinetta di Lugagnano - 6548ec42.
Analisi immobiliare
I dati in posseso di Caasa per quest'immobile sono insufficienti, inaffidabili o contraddittori per proporre un'analisi attendibile.
Mercato immobiliare a Cassinetta di Lugagnano
Per quanto riguarda più in generale il comune di Cassinetta di Lugagnano, sono presenti al momento più di dieci annunci per
case indipendenti in vendita (meno dell'1% dell'intera provincia) .
NOVITÀ Il risultato che vedi dipende dai dati che siamo riusciti ad estrarre dall'annuncio: ottieni una stima più accuranta di questo immobile, inserendo dati più precisi.
N.B. L'Opinione di Caasa® è un servizio sperimentale realizzato tramite tecniche di Intelligenza Artificiale, fornito senza alcuna garanzia di correttezza e completezza. Leggi il disclaimer o segnalaci un problema.
IMMAGINI
IN SINTESI
DESCRIZIONE
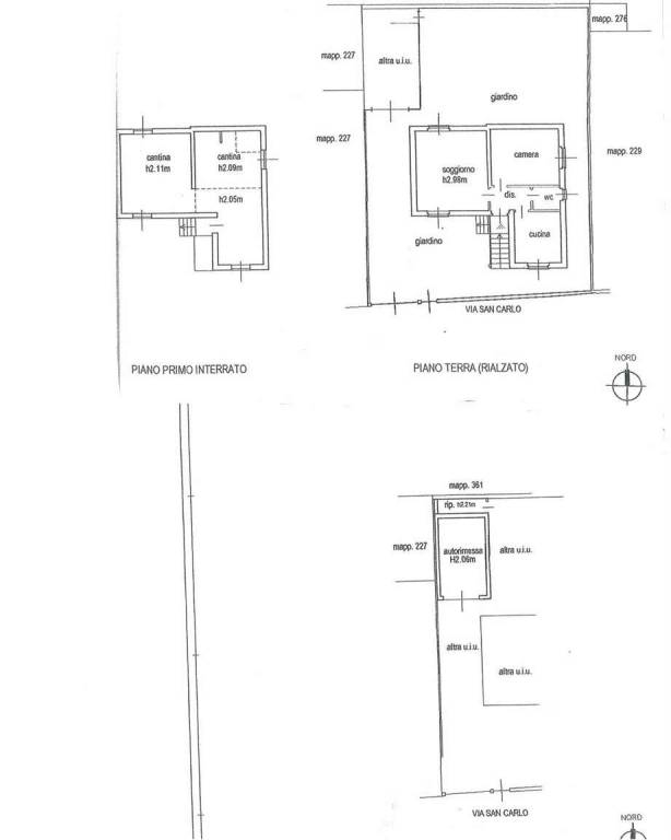
di nuova costruzione con posto auto con cantina con giardino con garage di recente ristrutturazione di nuova costruzione
La Tua Casa dei Sogni in uno dei Borghi più Belli d’Italia! Sogni l'indipendenza e il fascino della storia? A Cassinetta di Lugagnano, immersa nella tranquillità di uno dei borghi più suggestivi e rinomati d'Italia, proponiamo in vendita una villa singola unica nel suo genere, pronta per essere trasformata nel tuo rifugio ideale. Il Mix Perfetto tra Sicurezza e Personalizzazione Questa proprietà di circa 100 mq offre la rarissima opportunità di acquistare una casa singola con i lavori strutturali più onerosi già eseguiti: Tetto e soffitti COMPLETAMENTE RIFATTI (2025): Massima efficienza e nessuna preoccupazione per i prossimi decenni. Potenziale illimitato: Attualmente configurata come ampio 2 locali, la struttura si presta perfettamente a una trasformazione in un moderno e funzionale 3 locali. Spazi da Vivere e Personalizzare La villa è libera subito e ti aspetta per una ristrutturazione che rispecchi al 100% il tuo stile: Piano Rialzato: Un’ampia metratura dove creare una zona living luminosa e camere confortevoli. Piano Seminterrato: Una generosa cantina dalle grandi potenzialità, ideale per essere trasformata in una caratteristica taverna, una sala hobby o una zona relax. Box Auto: Comodo garage di 20 mq al piano terra. Giardino Privato: Uno spazio esterno esclusivo che circonda la casa, perfetto per le tue cene all'aperto o per il tuo amico a quattro zampe. La Posizione: Vivere nella Bellezza Vivere a Cassinetta di Lugagnano significa scegliere una qualità della vita superiore, tra le storiche Ville di Delizia del Naviglio Grande, a due passi da tutti i servizi ma immersi nel verde e nel silenzio di un borgo storico. I PUNTI DI FORZA IN BREVE: Villa singola (zero spese condominiali), Tetto e soffitti nuovi (Appena rifatti nel 2025!). Possibilità 3 locali, libera subito. Box e Taverna/Locale Hobby Non lasciarti sfuggire l'occasione di creare la casa che hai sempre immaginato! Contattaci oggi stesso per una visita e scopri tutto il potenziale di questa villa a Cassinetta



