Valutazione immobiliare indipendente, accurata e gratuita
L'Opinione di Caasa® per l'appartamento in vendita a Carugate a 362.000 € (cod.64e2d78e)
Secondo Caasa, per l'appartamento in vendita a Carugate, la richiesta di 362.000 € è leggermente vantaggiosa rispetto agli annunci simili.
Analisi immobiliare
L'appartamento, situato nella zona OMI B1, è proposto in vendita a
362.000 € per una
superficie commerciale di
110 m² e quindi ad un prezzo per metro quadrato pari a
3290 €/m²
.
Questo prezzo
è di poco inferiore a quello stimato da Caasa per immobili in vendita simili per tipologia, caratteristiche, classe energetica e zona, che è compreso tra
3.427 €/m² e
3.619 €/m².
Data la posizione dell'appartamento si sono utilizzati in raffronto i valori medi nelle zone limitrofe . Ad affinare la stima ha contribuito anche la classe energetica (A+) oltre alla conoscenza dello stato dell'immobile (di nuova costruzione) e di alcune caratteristiche significative come la disponibilità di una cantina o il posto auto. Per i motivi esposti è possibile ottenere un intervallo di valori accettabili per l'offerta relativamente limitato.
Mercato immobiliare a Carugate
Per quanto riguarda più in generale la città di Carugate, sono presenti al momento più di 150 annunci per
appartamenti in vendita (meno dell'1% dell'intera provincia) .
Possiamo inoltre considerare che in tutta la città negli ultimi 6 mesi, i prezzi per appartamenti in vendita sono
sostanzialmente stabili (+0,40%).
NOVITÀ Il risultato che vedi dipende dai dati che siamo riusciti ad estrarre dall'annuncio: ottieni una stima più accuranta di questo immobile, inserendo dati più precisi.
N.B. L'Opinione di Caasa® è un servizio sperimentale realizzato tramite tecniche di Intelligenza Artificiale, fornito senza alcuna garanzia di correttezza e completezza. Leggi il disclaimer o segnalaci un problema.
IMMAGINI
IN SINTESI
PROPOSTO DA:
TECNODOMUS
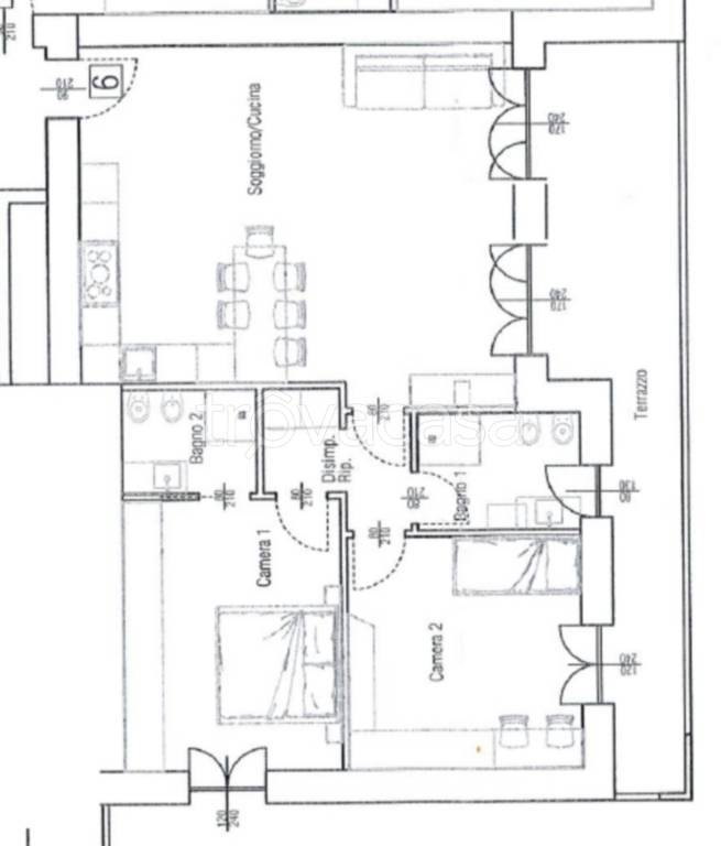
DESCRIZIONE
di nuova costruzione con terrazza di nuova costruzione con cantina con posto auto con termocondizionamento
CARUGATE: Tecnodomus Immobiliare propone in vendita soluzione di tre locali con terrazzo e doppi servizi in classe A2 in zona centrale e vicina ai maggiori servizi del paese. L'immobile è composto da ingresso con comoda zona giorno e cucina a vista, disimpegno, camera matrimoniale con bagno in camera, cameretta e bagno di servizio. Il terrazzo è collegato direttamente dal soggiorno e dalle camere. A completare la soluzione una cantina. Possibilità di acquisto di box singolo o doppio. Finiture interne sono a scelta del cliente tra un capitolato di alta qualità. L'appartamento è dotato riscaldamento a pavimento, impianto di ventilazione meccanica, pannelli solari termici, impianto di antifurto, serramenti esterni in legno a basso emissivo termico, zanzariere, impianto fotovoltaico e aria condizionata. Consegna prevista per LUGLIO 2026. LE FOTO INTERNE NON SONO DELLO SPECIFICO APPARTAMENTO. Per maggiori informazioni potete contattare il N° 02-9252478 oppure visitare il nostro sito www.tecnodomusimmobiliare.it o la nostra sede in Via Cesare Battisti, 7 a Carugate (MI). " CI SONO CASE E CI SONO PERSONE. CI SONO VENDITE E CI SONO ACQUISTI. CI SONO PROFESSIONISTI E CI SONO PROFESSIONISTI SENSIBILI. PER TECNODOMUS LE CASE SONO IMPORTANTI, MA TU CHE DECIDI DI AFFIDARTI A NOI, DI PIU'! " Il presente annuncio non costituisce elemento contrattuale

