Valutazione immobiliare indipendente, accurata e gratuita
L'Opinione di Caasa® per l'appartamento in vendita a Bussero a 198.000 € (cod.651fe53c)
Secondo Caasa, per l'appartamento in vendita a Bussero, la richiesta di 198.000 € è significativamente vantaggiosa rispetto agli annunci simili.
Analisi immobiliare
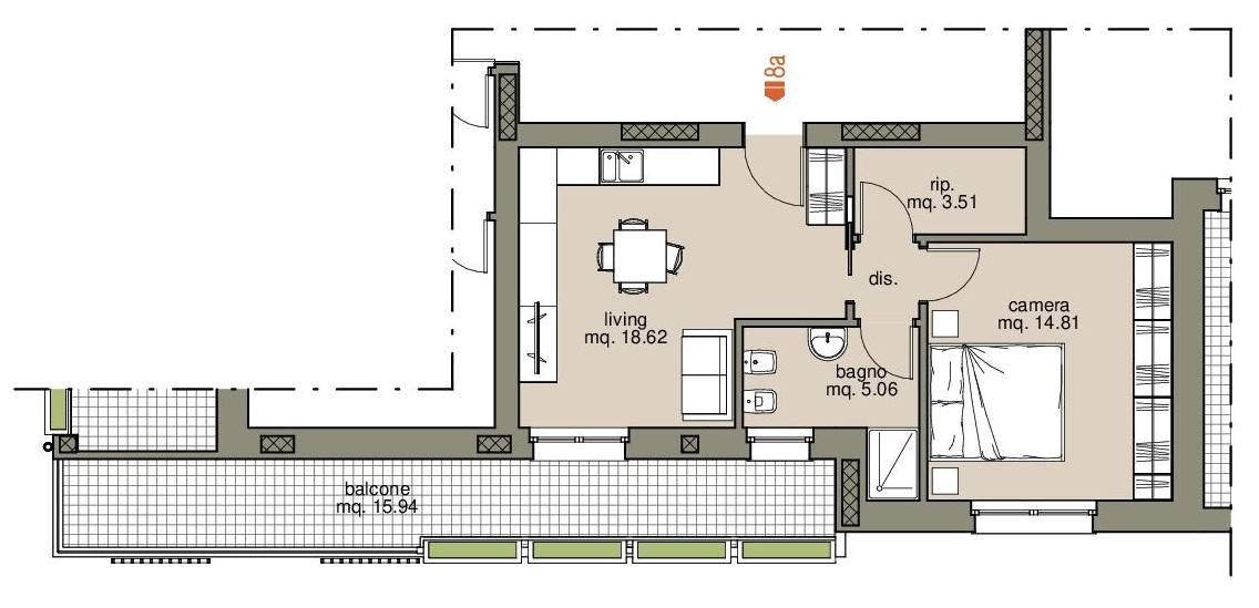
L'appartamento, situato nella zona OMI B1, è proposto in vendita a
198.000 € per una
superficie commerciale di
65 m² e quindi ad un prezzo per metro quadrato pari a
3046 €/m²
.
Questo valore
è significativamente più basso di quello stimato da Caasa per immobili in vendita simili per tipologia, caratteristiche, classe energetica e zona, che è compreso tra
3.472 €/m² e
3.700 €/m².
Considerata la posizione dell'appartamento si sono utilizzati in raffronto i valori medi nelle zone limitrofe . Ad affinare la stima ha contribuito anche la classe energetica (A) oltre alla conoscenza dello stato dell'immobile (di nuova costruzione) e di alcune caratteristiche significative come la presenza dell'ascensore, la disponibilità di una cantina o il posto auto. Per questi motivi è possibile ottenere un intervallo di valori accettabili per l'offerta relativamente limitato.
Mercato immobiliare a Bussero
Per quanto riguarda più in generale il comune di Bussero, sono presenti al momento più di cinquanta annunci per
appartamenti in vendita (meno dell'1% dell'intera provincia) .
Per quanto riguarda la dinamica dei prezzi, negli ultimi 6 mesi i prezzi medi in tutto il comune per appartamenti in vendita sono
in aumento (+4,20%).
NOVITÀ Il risultato che vedi dipende dai dati che siamo riusciti ad estrarre dall'annuncio: ottieni una stima più accuranta di questo immobile, inserendo dati più precisi.
N.B. L'Opinione di Caasa® è un servizio sperimentale realizzato tramite tecniche di Intelligenza Artificiale, fornito senza alcuna garanzia di correttezza e completezza. Leggi il disclaimer o segnalaci un problema.
IMMAGINI
IN SINTESI
PROPOSTO DA:
PROFESSIONECASA BUSSERO
DESCRIZIONE
di nuova costruzione con cantina con posto auto con termocondizionamento con ascensore con giardino
RESIDENZA PERTINI", Bussero, vic. centro paese, nella zona tra le pi belle e tranquille del paese, prossima realizzazione di eccellente contesto residenziale ad elevate prestazioni energetiche 3, "NO GAS". Appartamento posto al piano secondo, di 2 locali, servizi con cucina a vista, ampia balconata, cantina compresa e poss. box auto. Palazzina con ascensore. Scelta materiali e possibilit di personalizzazioni interne oltre a predisposizione clima, tapparelle elettriche, riscaldamento centralizzato contabilizzato, ventilazione meccanica controllata, ampi serramenti scorrevoli e a battente. Planimetrie di progetto in ufficio. Planimetrie di progetto in ufficio. Consegna prevista entro fine 2026. Da vedere! - SC9511332


