Valutazione immobiliare indipendente, accurata e gratuita
Appartamento in vendita a Bollate in zona Cassina Nuova a 451.000 € (cod.656c434a)
Caasa non ha sufficienti informazioni per commentare l'appartamento a Bollate in zona Cassina Nuova - 656c434a.
Analisi immobiliare
I dati in posseso di Caasa per quest'immobile sono insufficienti, inaffidabili o contraddittori per proporre un'analisi attendibile.
Mercato immobiliare a Bollate
Per quanto riguarda più in generale la città di Bollate, sono presenti al momento più di 300 annunci per
appartamenti in vendita (meno dell'1% dell'intera provincia)
e il maggior numero di annunci per questa tipologia sono relativi proprio alla zona di Cassina Nuova.
La richiesta media nella zona dove sorge l'appartamento (Cassina Nuova) è pari a
2.345 €/m² che la rende la più economica della città .
Possiamo inoltre considerare che in tutta la città negli ultimi 6 mesi, i prezzi per appartamenti in vendita sono
in sostanziale aumento (+7,41%).
NOVITÀ Il risultato che vedi dipende dai dati che siamo riusciti ad estrarre dall'annuncio: ottieni una stima più accuranta di questo immobile, inserendo dati più precisi.
N.B. L'Opinione di Caasa® è un servizio sperimentale realizzato tramite tecniche di Intelligenza Artificiale, fornito senza alcuna garanzia di correttezza e completezza. Leggi il disclaimer o segnalaci un problema.
IMMAGINI
IN SINTESI
PROPOSTO DA:
Le nostre sedi: Milano, Bollate ,Arese e Napoli
DESCRIZIONE
di nuova costruzione con terrazza di nuova costruzione con termocondizionamento con climatizzazione
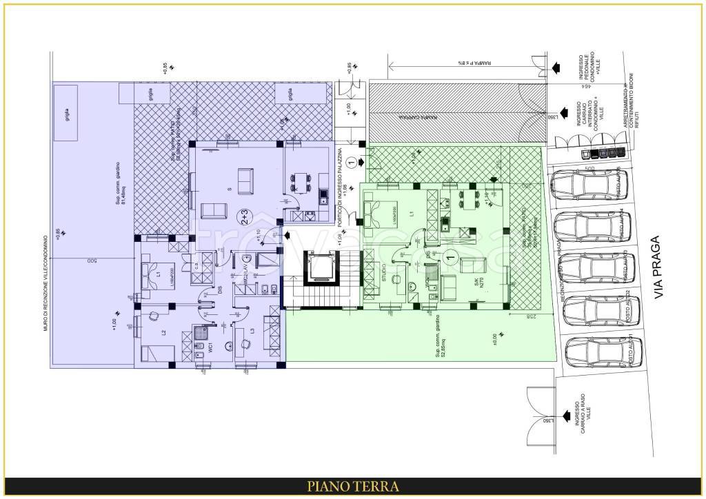
RESIDENZA CA’ PRAGA 64 – LA TUA NUOVA CASA, DOVE COMFORT E NATURA SI INCONTRANO INIZIO LAVORI MARZO 2026 - CONSEGNA FINE 2027 Immagina di rientrare a casa e trovare **silenzio, luce, spazi aperti e verde**. A Cassina Nuova di Bollate nasce **Residenza Ca’ Praga 64**, una nuova costruzione pensata per chi desidera **vivere meglio**, oggi e nel futuro. Un progetto moderno, elegante e sostenibile, dove ogni dettaglio è stato studiato per offrire **benessere quotidiano, efficienza energetica e qualità abitativa superiore**. ### UN MODO NUOVO DI ABITARE Gli appartamenti, con metrature **da 60 a 180 mq**, sono progettati per garantire ambienti luminosi, razionali e accoglienti, valorizzati da **ampie terrazze vivibili**: veri spazi da vivere, ideali per rilassarsi, lavorare all’aperto o condividere momenti con famiglia e amici. Il verde integrato nelle facciate e negli spazi esterni crea un microclima naturale che rende ogni abitazione più confortevole e armoniosa. COMFORT CHE SI SENTE, CONSUMI CHE SI RIDUCONO **Riscaldamento a pavimento** per un calore uniforme e avvolgente **Pompe di calore** e **impianto fotovoltaico con accumulo** * Edificio ad **alta efficienza energetica – Classe A2** * Isolamento termico e acustico di alto livello per il massimo silenzio Vivere qui significa **meno sprechi, più comfort e maggiore valore nel tempo**. INTERNI E FINITURE DI QUALITÀ Materiali moderni, linee pulite e finiture curate: * Serramenti in PVC con **triplo vetro** * Tapparelle motorizzate * Porte blindate * Pavimenti in **gres porcellanato di pregio** o parquet * Bagni eleganti con sanitari sospesi Ogni spazio è pensato per essere **bello, funzionale e duraturo**. UNA POSIZIONE IDEALE La residenza è inserita in un contesto tranquillo e residenziale, ben collegato e circondato da verde, perfetto per chi cerca **privacy, qualità della vita e comodità ai servizi**. ? **Residenza Ca’ Praga 64 non è solo una casa, è un investimento sul tuo benessere.** Contattaci per scoprire le disponibilità, le planimetrie e fissare un[…]

