Valutazione immobiliare indipendente, accurata e gratuita
Appartamento in vendita a San Benedetto Po a 11.475 € (cod.65510616)
Caasa non ha sufficienti informazioni per commentare l'appartamento in vendita a San Benedetto Po - 65510616.
Analisi immobiliare
I dati in posseso di Caasa per quest'immobile sono insufficienti, inaffidabili o contraddittori per proporre un'analisi attendibile.
Mercato immobiliare a San Benedetto Po
Per quanto riguarda più in generale il comune di San Benedetto Po, sono presenti al momento più di cento annunci per
appartamenti in vendita (meno del 5% dell'intera provincia) .
Possiamo inoltre considerare che in tutto il comune negli ultimi 6 mesi, i prezzi per appartamenti in vendita sono
in deciso aumento (+8,65%).
NOVITÀ Il risultato che vedi dipende dai dati che siamo riusciti ad estrarre dall'annuncio: ottieni una stima più accuranta di questo immobile, inserendo dati più precisi.
N.B. L'Opinione di Caasa® è un servizio sperimentale realizzato tramite tecniche di Intelligenza Artificiale, fornito senza alcuna garanzia di correttezza e completezza. Leggi il disclaimer o segnalaci un problema.
IMMAGINI
IN SINTESI
PROPOSTO DA:
Case all'Asta
DESCRIZIONE
di recente ristrutturazione con posto auto con garage in asta giudiziaria di recente costruzione di nuova costruzione senza ascensore
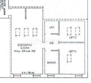
Appartamento trilocale in costruzione nel centro di San Benedetto Po. Posto al secondo e ultimo piano di un edificio ristrutturato, senza ascensore. Composto da soggiorno con cucina, disimpegno, due camere e un bagno. Accesso da vano scala comune, pr […]
