Valutazione immobiliare indipendente, accurata e gratuita
Appartamento in vendita a Mantova in zona Valletta Valsecchi a 105.000 € (cod.6522d710)
Caasa non ha sufficienti informazioni per commentare l'appartamento a Mantova in zona Valletta Valsecchi - 6522d710.
Analisi immobiliare
I dati in posseso di Caasa per quest'immobile sono insufficienti, inaffidabili o contraddittori per proporre un'analisi attendibile.
Mercato immobiliare a Mantova
Per quanto riguarda più in generale la città di Mantova, sono presenti al momento ben oltre mille annunci per
appartamenti in vendita (meno di un terzo dell'intera provincia)
e il maggior numero di annunci per questa tipologia sono relativi alla zona di Centro Storico, mentre la zona di Valletta Valsecchi risulta molto meno attiva considerando il numero di annunci presenti.
La richiesta media nella zona dove sorge l'appartamento (Valletta Valsecchi pressi Via Domenico Fernelli) è pari a
2.000 €/m², molto vicina ai valori della zona Virgiliana che sono i più alti della città .
Per quanto riguarda la dinamica dei prezzi, negli ultimi 6 mesi i prezzi medi in tutta la città per appartamenti in vendita sono
sostanzialmente stabili (-1,05%).
NOVITÀ Il risultato che vedi dipende dai dati che siamo riusciti ad estrarre dall'annuncio: ottieni una stima più accuranta di questo immobile, inserendo dati più precisi.
N.B. L'Opinione di Caasa® è un servizio sperimentale realizzato tramite tecniche di Intelligenza Artificiale, fornito senza alcuna garanzia di correttezza e completezza. Leggi il disclaimer o segnalaci un problema.
IMMAGINI
IN SINTESI
PROPOSTO DA:
ITALCASA CROTONE S.R.L.
DESCRIZIONE
di recente ristrutturazione di recente ristrutturazione da ristrutturare
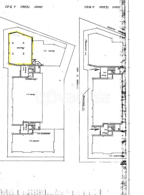
Valletta Valsecchi, vendiamo ampio negozio, trasformabile ad uso residenziale. L'immobile, che necessita di lavori di ristrutturazione, è attualmente composto da 5 vetrine oltre ai servizi ed ha un'ottima visibilità. Chiedendo il cambio di destinazione d'uso, è possibile acquistarlo nello stato di fatto in cui si trova al prezzo richiesto di € 105.000, oppure ristrutturato ( richiesta € 200.000) La trasformazione in appartamento, con finiture di pregio, prevede che gli spazi vengano così distribuiti: ingresso, soggiorno con cucina a vista, due camere da letto, e doppi servizi. VALUTAZIONE GRATUITA Se dovete vendere casa e volete conoscere il valore del vostro immobile, affidatevi alla nostra esperienza. Servizi per chi vende: - Valutazione gratuita dell'immobile - Analisi di provenienza - Visure ipotecarie - Visura catastale - Pubblicità dell'immobile - Rapidità nei tempi di vendita - Incarico a procurare la vendita. Veniteci a trovare in agenzia, siamo a Mantova in Via Domenico Fernelli, 33 il nostro personale qualificato ed esperto vi aiuterà a trovare l'immobile giusto per le vostre esigenze. Le presenti informazioni e planimetrie sono meramente indicative e non costituiscono elementi contrattuali. Per motivi di privacy l’indirizzo e numero civico non corrispondono alla reale ubicazione dell’immobile


