Valutazione immobiliare indipendente, accurata e gratuita
Appartamento in vendita a Castel Goffredo a 47.813 € (cod.6502ff74)
Caasa non ha sufficienti informazioni per commentare l'appartamento in vendita a Castel Goffredo - 6502ff74.
Analisi immobiliare
I dati in posseso di Caasa per quest'immobile sono insufficienti, inaffidabili o contraddittori per proporre un'analisi attendibile.
Mercato immobiliare a Castel Goffredo
Per quanto riguarda più in generale il comune di Castel Goffredo, sono presenti al momento più di cinquanta annunci per
appartamenti in vendita (meno del 5% dell'intera provincia) .
Per quanto riguarda la dinamica dei prezzi, negli ultimi 6 mesi i prezzi medi in tutto il comune per appartamenti in vendita sono
in forte aumento (+11,18%).
NOVITÀ Il risultato che vedi dipende dai dati che siamo riusciti ad estrarre dall'annuncio: ottieni una stima più accuranta di questo immobile, inserendo dati più precisi.
N.B. L'Opinione di Caasa® è un servizio sperimentale realizzato tramite tecniche di Intelligenza Artificiale, fornito senza alcuna garanzia di correttezza e completezza. Leggi il disclaimer o segnalaci un problema.
IMMAGINI
IN SINTESI
DESCRIZIONE
di recente ristrutturazione con posto auto con garage con terrazza con balcone da ristrutturare di recente ristrutturazione in asta giudiziaria
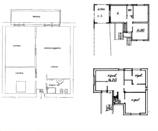
In Comune di Castel Goffredo, via Monte Gran Sasso n. 9/B, intera piena proprietà dei seguenti immobili: - appartamento al piano primo di fabbricato condominiale, composto da ingresso, soggiorno, cucina, corridoio, due camere da letto, bagno e balcon […]
