Valutazione immobiliare indipendente, accurata e gratuita
Appartamento in vendita a Borgo Virgilio in zona Virgilio a 450.000 € (cod.653c3c72)
Caasa non ha sufficienti informazioni per commentare l'appartamento a Borgo Virgilio in zona Virgilio - 653c3c72.
Analisi immobiliare
I dati in posseso di Caasa per quest'immobile sono insufficienti, inaffidabili o contraddittori per proporre un'analisi attendibile.
Mercato immobiliare a Borgo Virgilio
Per quanto riguarda più in generale il comune di Borgo Virgilio, sono presenti al momento più di 150 annunci per
appartamenti in vendita (meno del 5% dell'intera provincia)
e il maggior numero di annunci per questa tipologia sono relativi proprio alla zona di Virgilio.
Per quanto riguarda la richiesta media in zona Virgilio, dove sorge l'appartamento, essa è pari a circa
1.265 €/m² per appartamenti in vendita.
Possiamo inoltre considerare che in tutto il comune negli ultimi 6 mesi, i prezzi per appartamenti in vendita sono
in sostanziale aumento (+7,47%).
NOVITÀ Il risultato che vedi dipende dai dati che siamo riusciti ad estrarre dall'annuncio: ottieni una stima più accuranta di questo immobile, inserendo dati più precisi.
N.B. L'Opinione di Caasa® è un servizio sperimentale realizzato tramite tecniche di Intelligenza Artificiale, fornito senza alcuna garanzia di correttezza e completezza. Leggi il disclaimer o segnalaci un problema.
IMMAGINI
IN SINTESI
PROPOSTO DA:
STUDIO VIRGILIO DI VALENZA JOLENA
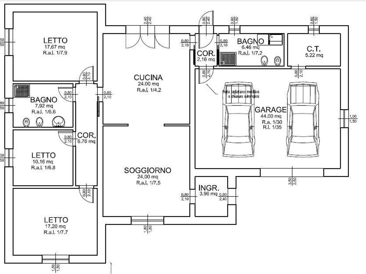
DESCRIZIONE
di nuova costruzione con posto auto con garage con giardino di nuova costruzione
CERESE ZONA CENTRALE - NUOVA VILLA SINGOLA Proponiamo in vendita villa singola realizzata tutta a piano terra su lotto angolare di 800 mq. La soluzione verrà realizzata in 12 mesi dalla sottoscrizione del preliminare. Zona giorno da 48 mq, zona notte con 2 matrimoniali e 1 trequarti e garage doppio da 44 mq. Abitazione in impianto fotovoltaico 4,5kw, impianto VMC, punti climatizzazione in ogni stanza, cancello automatico, con possibilità di personalizzare finiture estetiche, tecnologiche e ridistribuzione dei locali. POSSIBILITA' DI SVILUPPARE ANCHE BIFAMILIARI - INFORMAZIONI IN AGENZIA IMMOBILIARE STUDIO VIRGILIO Classe Energetica: A4






