Valutazione immobiliare indipendente, accurata e gratuita
Appartamento in vendita a Sant'Angelo Lodigiano a 54.254 € (cod.65017b18)
Caasa non ha sufficienti informazioni per commentare l'appartamento in vendita a Sant'Angelo Lodigiano - 65017b18.
Analisi immobiliare
I dati in posseso di Caasa per quest'immobile sono insufficienti, inaffidabili o contraddittori per proporre un'analisi attendibile.
Mercato immobiliare a Sant'Angelo Lodigiano
Per quanto riguarda più in generale il comune di Sant'Angelo Lodigiano, sono presenti al momento più di 200 annunci per
appartamenti in vendita (meno del 10% dell'intera provincia) .
Per quanto riguarda la dinamica dei prezzi, negli ultimi 6 mesi i prezzi medi in tutto il comune per appartamenti in vendita sono
sostanzialmente stabili (+1,05%).
NOVITÀ Il risultato che vedi dipende dai dati che siamo riusciti ad estrarre dall'annuncio: ottieni una stima più accuranta di questo immobile, inserendo dati più precisi.
N.B. L'Opinione di Caasa® è un servizio sperimentale realizzato tramite tecniche di Intelligenza Artificiale, fornito senza alcuna garanzia di correttezza e completezza. Leggi il disclaimer o segnalaci un problema.
IMMAGINI
IN SINTESI
PROPOSTO DA:
STUDIO CANOVA immobili & crediti
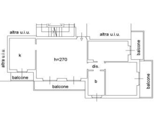
DESCRIZIONE
di recente costruzione con balcone con cucina abitabile in asta giudiziaria con ascensore di recente costruzione
NUOVA PROPOSTA IMMOBILE DISPONIBILE Appartamento sito nel comune di Sant'Angelo Lodigiano (LO) in via Statuto. L'abitazione, il cui accesso avviene dal vano scale condominiale con ascensore, è composta da soggiorno, cucina abitabile, due camere da letto, un bagno e quattro balconi. Gli immobili sono situati in una zona tranquilla a qualche chilometro dal centro della città in cui sono presenti i principali servizi primari e secondari. Per te la possibilità di avere un preventivo per il mutuo a condizioni vantaggiose con i nostri partner. Ulteriori dettagli, foto degli interni, planimetrie e altre info, se disponibili, saranno consultabili previo appuntamento nella sede di MILANO con GIANMARCO che inoltre ti informerà sulle possibilità di aggiudicarti questo affare. L'immobile pubblicato al momento è sottoposto a procedura di vendita legale; Gescom srl è specializzata nella ricerca e pianificazione di investimenti immobiliari secondo innovative strategie di acquisto. Contattaci subito potrai valutare assieme a un nostro tecnico canali distinti di acquisto dell’immobile, procedura di vendita diretta senza ricorrere all’asta (d.lgs. 149/2022) e ancora stralcio immobiliare. Le informazioni sopra riportate non sostituiscono l'avviso pubblicato dal Tribunale competente ne’ l'integrale gestione da parte del delegato designato. Il testo e le specifiche indicate nella presente pagina sono generate automaticamente attraverso l'utilizzo di software e/o da A. I., Gescom srl invita a verificare le formazioni e i materiali multimediali sui canali ufficiali, declinando fin d'ora ogni responsabilità su eventuali errori o incongruenze. Gescom Italia srl leader negli stralci immobiliari e nella consulenza tecnico legale, non si occupa di attività di intermediazione imm. di cui alla legge 39/89. Cl. energ. da verificare. Le foto pubblicate nel presente annuncio sono indicative e non esaustive della tipologia, qualità, consistenza e indicazione geografica dell'immobile







