Valutazione immobiliare indipendente, accurata e gratuita
Ufficio in vendita a Viganò a 250.000 € (cod.654ce161)
Caasa non ha sufficienti informazioni per commentare l'ufficio in vendita a Viganò - 654ce161.
Analisi immobiliare
I dati in posseso di Caasa per quest'immobile sono insufficienti, inaffidabili o contraddittori per proporre un'analisi attendibile.
Mercato immobiliare a Viganò
Per quanto riguarda più in generale il comune di Viganò, sono presenti al momento meno di dieci annunci per
uffici in vendita (meno dell'1% dell'intera provincia) .
Vedi altre informazioni direttamente su
Mercato-Immobiliare.info
NOVITÀ Il risultato che vedi dipende dai dati che siamo riusciti ad estrarre dall'annuncio: ottieni una stima più accuranta di questo immobile, inserendo dati più precisi.
N.B. L'Opinione di Caasa® è un servizio sperimentale realizzato tramite tecniche di Intelligenza Artificiale, fornito senza alcuna garanzia di correttezza e completezza. Leggi il disclaimer o segnalaci un problema.
IMMAGINI
IN SINTESI
PROPOSTO DA:
LURASCHI SANDRO
DESCRIZIONE
con balcone con termocondizionamento con riscaldamento autonomo
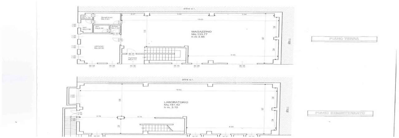
Disponiamo di porzione di capannone all'interno di un complesso industriale artigianale. Al piano terra si sviluppa il magazzino di 180 mq con ufficio, bagno e spogliatoio, al piano interrato il laboratorio di altrettanti 180 mq. I due livelli sono collegati da scala interna ed esterna. Struttura in cemento armato prefabbricato. Ulteriori informazioni presso il nostro studio. CLASSE ENERGETICA: In fase di valutazione (Classe Energetica in fase di richiesta

