Valutazione immobiliare indipendente, accurata e gratuita
Casa indipendente in vendita a Missaglia a 350.000 € (cod.655bac91)
Caasa non ha sufficienti informazioni per commentare la casa indipendente in vendita a Missaglia - 655bac91.
Analisi immobiliare
I dati in posseso di Caasa per quest'immobile sono insufficienti, inaffidabili o contraddittori per proporre un'analisi attendibile.
Mercato immobiliare a Missaglia
Per quanto riguarda più in generale il comune di Missaglia, sono presenti al momento più di cento annunci per
case indipendenti in vendita (meno del 5% dell'intera provincia)
e il maggior numero di annunci per questa tipologia sono relativi alla zona di Maresso.
Relativamente alla dinamica dei prezzi, possiamo dire che negli ultimi 6 mesi i prezzi medi in tutto il comune per case indipendenti in vendita sono
in deciso calo (-7,71%).
NOVITÀ Il risultato che vedi dipende dai dati che siamo riusciti ad estrarre dall'annuncio: ottieni una stima più accuranta di questo immobile, inserendo dati più precisi.
N.B. L'Opinione di Caasa® è un servizio sperimentale realizzato tramite tecniche di Intelligenza Artificiale, fornito senza alcuna garanzia di correttezza e completezza. Leggi il disclaimer o segnalaci un problema.
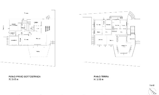
IMMAGINI
IN SINTESI
PROPOSTO DA:
Studio Immobiliare Franco Guerrieri
DESCRIZIONE
da ristrutturare con terrazza con giardino con posto auto da ristrutturare con garage
In posizione dominante e immersa nel verde, proponiamo in vendita una villa singola completamente da ristrutturare con giardino di 2.500 mq circa, ideale per chi desidera creare la casa dei propri sogni in un contesto riservato e di grande fascino. L […]
