Valutazione immobiliare indipendente, accurata e gratuita
Casa indipendente in vendita a Missaglia a 344.850 € (cod.652c3b50)
Caasa non ha sufficienti informazioni per commentare la casa indipendente in vendita a Missaglia - 652c3b50.
Analisi immobiliare
I dati in posseso di Caasa per quest'immobile sono insufficienti, inaffidabili o contraddittori per proporre un'analisi attendibile.
Mercato immobiliare a Missaglia
Per quanto riguarda più in generale il comune di Missaglia, sono presenti al momento più di cento annunci per
case indipendenti in vendita (meno del 5% dell'intera provincia)
e il maggior numero di annunci per questa tipologia sono relativi alla zona di Maresso.
Per quanto riguarda la dinamica dei prezzi, negli ultimi 6 mesi i prezzi medi in tutto il comune per case indipendenti in vendita sono
sostanzialmente stabili (-0,66%).
NOVITÀ Il risultato che vedi dipende dai dati che siamo riusciti ad estrarre dall'annuncio: ottieni una stima più accuranta di questo immobile, inserendo dati più precisi.
N.B. L'Opinione di Caasa® è un servizio sperimentale realizzato tramite tecniche di Intelligenza Artificiale, fornito senza alcuna garanzia di correttezza e completezza. Leggi il disclaimer o segnalaci un problema.
IMMAGINI
IN SINTESI
DESCRIZIONE
di recente ristrutturazione con giardino con cantina di recente ristrutturazione in asta giudiziaria
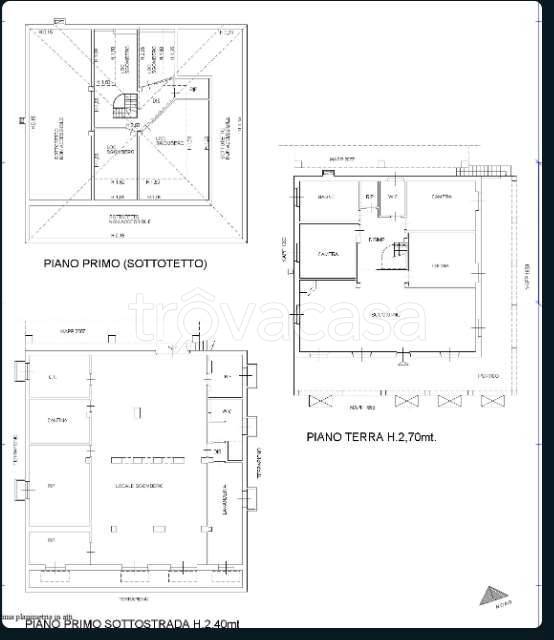
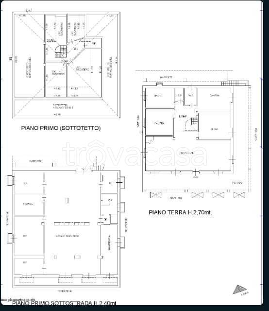
Villa di ampia metratura (358 mq) con grande area di pertinenza (giardino e terreno agricolo). La villa risulta così composta: **Il piano terra è interessato da locali principali quali soggiorno/pranzo in cui ci si immette direttamente dalla porta d’ […]
