Valutazione immobiliare indipendente, accurata e gratuita
L'Opinione di Caasa® per l'appartamento in vendita a Merate a 195.000 € (cod.657e229f)
Secondo Caasa, per l'appartamento in vendita a Merate, la richiesta di 195.000 € è equilibrata rispetto agli annunci simili.
Analisi immobiliare
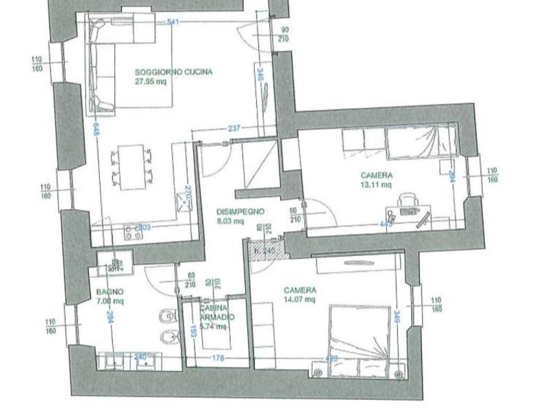
L'appartamento, situato nella zona OMI B2, è proposto in vendita a
195.000 € per una
superficie commerciale di
103 m² e quindi ad un prezzo per metro quadrato pari a
1893 €/m²
.
Tale valore
è in linea con quello stimato da Caasa per immobili in vendita simili per tipologia e caratteristiche e localizzati nella stessa zona OMI, che è compreso tra
1.865 €/m² e
2.061 €/m².
Grazie alla conoscenza con buona approssimazione della localizzazione dell'immobile, è stato possibile utilizzare come raffronto i dati medi elaborati esattamente nella zona OMI di appertenenza (CENTRO EDIFICATO). Anche se Caasa non è riuscita a determinare la classe energetica, ad affinare la stima hanno contribuito anche lo stato dell'immobile (di recente ristrutturazione) e la presenza di alcune caratteristiche significative come la disponibilità di una cantina. In virtù di queste considerazioni i valori accettabili per l'offerta costituiscono un intervallo relativamente limitato.
Mercato immobiliare a Merate
Per quanto riguarda più in generale il comune di Merate, sono presenti al momento più di 150 annunci per
appartamenti in vendita (meno del 5% dell'intera provincia)
e il maggior numero di annunci per questa tipologia sono relativi alla zona di Brugarolo.
La dinamica dei prezzi in tutto il comune mostra che negli ultimi 6 mesi, i prezzi per appartamenti in vendita sono
sostanzialmente stabili (-0,21%).
NOVITÀ Il risultato che vedi dipende dai dati che siamo riusciti ad estrarre dall'annuncio: ottieni una stima più accuranta di questo immobile, inserendo dati più precisi.
N.B. L'Opinione di Caasa® è un servizio sperimentale realizzato tramite tecniche di Intelligenza Artificiale, fornito senza alcuna garanzia di correttezza e completezza. Leggi il disclaimer o segnalaci un problema.
IMMAGINI
IN SINTESI
DESCRIZIONE
di recente ristrutturazione con cantina con termocondizionamento di recente ristrutturazione
Appartamento in Vendita a Merate - Un'Occasione Unica! ** In una posizione centrale e storica a Merate, in Via Collegio Manzoni, si trova questo splendido appartamento di 103 mq, pronto a diventare la tua nuova casa. Situato al primo piano di un edificio in fase di completa ristrutturazione, l'immobile offre un ampio soggiorno con cucina a vista, perfetto per momenti di convivialità. Le travi a vista conferiscono un tocco di eleganza e calore all'ambiente. L'appartamento dispone di due camere da letto, una cabina armadio e un ripostiglio, garantendo spazio e funzionalità. Il servizio è finestrato, aggiungendo luminosità agli spazi. Il riscaldamento a pavimento e la predisposizione per l'aria condizionata assicurano comfort in ogni stagione. Completa la proprietà una comoda cantina. Possibilità di box a parte ad e 25.000,00



