Valutazione immobiliare indipendente, accurata e gratuita
Casa indipendente in vendita a Colico in zona Villatico a 450.000 € (cod.64fc8c25)
Caasa non ha sufficienti informazioni per commentare la casa indipendente a Colico in zona Villatico - 64fc8c25.
Analisi immobiliare
I dati in posseso di Caasa per quest'immobile sono insufficienti, inaffidabili o contraddittori per proporre un'analisi attendibile.
Mercato immobiliare a Colico
Per quanto riguarda più in generale il comune di Colico, sono presenti al momento più di cento annunci per
case indipendenti in vendita (meno del 5% dell'intera provincia)
e il maggior numero di annunci per questa tipologia sono relativi alla zona di Olgiasca, mentre nella zona di Villatico è presente un numero significativamente inferiore di annunci.
Per quanto riguarda la richiesta media in zona Villatico, dove sorge la casa indipendente, essa è pari a circa
2.485 €/m² per case indipendenti in vendita.
Relativamente alla dinamica dei prezzi, possiamo dire che negli ultimi 6 mesi i prezzi medi in tutto il comune per case indipendenti in vendita sono
in calo (-4,88%).
NOVITÀ Il risultato che vedi dipende dai dati che siamo riusciti ad estrarre dall'annuncio: ottieni una stima più accuranta di questo immobile, inserendo dati più precisi.
N.B. L'Opinione di Caasa® è un servizio sperimentale realizzato tramite tecniche di Intelligenza Artificiale, fornito senza alcuna garanzia di correttezza e completezza. Leggi il disclaimer o segnalaci un problema.
IMMAGINI
IN SINTESI
DESCRIZIONE
di recente ristrutturazione con posto auto con giardino con garage di recente ristrutturazione
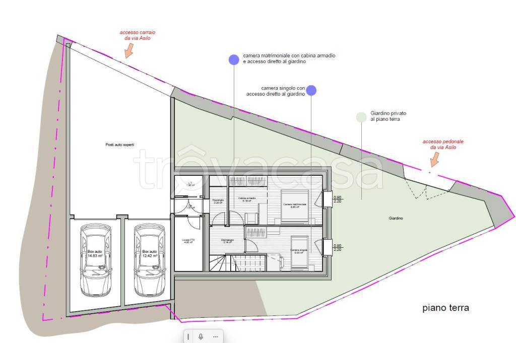
Esclusiva Le Mille e Una Casa presenta in vendita a Colico, località Villatico, un affascinante rustico con terreno, già dotato di progetto approvato e oneri concessori saldati. L'immobile offre la possibilità di realizzare una villa indipendente di circa 175 mq, completamente personalizzabile, dando vita a una casa unica, modellata sui propri desideri. Caratteristiche del progetto • Villa unifamiliare su tre livelli con ampio giardino privato • Open space soggiorno-cucina con affaccio sul verde • 4 camere da letto, spaziose e luminose • 2 bagni moderni e funzionali • Locali accessori e tecnici • 2 box auto + 2 posti auto scoperti • Giardino su due livelli, ideale anche per piscina Perché sceglierla • Investimento complessivo stimato: circa Eu.450.000 (acquisto + ristrutturazione) • Massima libertà di personalizzazione, per adattare la villa ai tuoi gusti e alle tue esigenze Contattaci per scoprire questa opportunità esclusiva e iniziare a immaginare la tua nuova vita sul Lago di Como. EPI: 360,00 kwh/m2 anno




