Valutazione immobiliare indipendente, accurata e gratuita
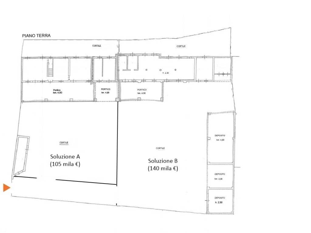
Casa indipendente in vendita ad Offanengo a 140.000 € (cod.65a2a11c)
Caasa non ha sufficienti informazioni per commentare la casa indipendente in vendita ad Offanengo - 65a2a11c.
Analisi immobiliare
I dati in posseso di Caasa per quest'immobile sono insufficienti, inaffidabili o contraddittori per proporre un'analisi attendibile.
Mercato immobiliare ad Offanengo
Per quanto riguarda più in generale il comune di Offanengo, sono presenti al momento più di cinquanta annunci per
case indipendenti in vendita (meno del 5% dell'intera provincia) .
Per quanto riguarda la dinamica dei prezzi, negli ultimi 6 mesi i prezzi medi in tutto il comune per case indipendenti in vendita sono
in sostanziale calo (-6,02%).
NOVITÀ Il risultato che vedi dipende dai dati che siamo riusciti ad estrarre dall'annuncio: ottieni una stima più accuranta di questo immobile, inserendo dati più precisi.
N.B. L'Opinione di Caasa® è un servizio sperimentale realizzato tramite tecniche di Intelligenza Artificiale, fornito senza alcuna garanzia di correttezza e completezza. Leggi il disclaimer o segnalaci un problema.
IMMAGINI
IN SINTESI
PROPOSTO DA:
Studio Casa Crotone
