Valutazione immobiliare indipendente, accurata e gratuita
Casa indipendente in vendita a Genivolta a 282.000 € (cod.656cb7d2)
Caasa non ha sufficienti informazioni per commentare la casa indipendente in vendita a Genivolta - 656cb7d2.
Analisi immobiliare
I dati in posseso di Caasa per quest'immobile sono insufficienti, inaffidabili o contraddittori per proporre un'analisi attendibile.
Mercato immobiliare a Genivolta
Per quanto riguarda più in generale il comune di Genivolta, sono presenti al momento più di venti annunci per
case indipendenti in vendita (meno dell'1% dell'intera provincia) .
Possiamo inoltre considerare che in tutto il comune negli ultimi 6 mesi, i prezzi per case indipendenti in vendita sono
in calo (-4,65%).
NOVITÀ Il risultato che vedi dipende dai dati che siamo riusciti ad estrarre dall'annuncio: ottieni una stima più accuranta di questo immobile, inserendo dati più precisi.
N.B. L'Opinione di Caasa® è un servizio sperimentale realizzato tramite tecniche di Intelligenza Artificiale, fornito senza alcuna garanzia di correttezza e completezza. Leggi il disclaimer o segnalaci un problema.
IMMAGINI
IN SINTESI
DESCRIZIONE
di nuova costruzione con posto auto con garage con giardino con cucina abitabile di nuova costruzione con termocondizionamento
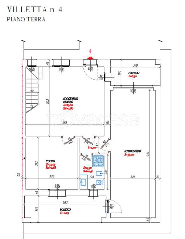
Genivolta - in tranquilla zona residenziale, a soli 400 metri dalla piazza del comune, nuove villette su 2 livelli composte da: piano terra portico d'ingresso, ampio soggiorno, cucina abitabile con accesso al portico posteriore, bagno, disimpegno di collegamento al garage doppio, giardino su 3 lati di 308 mq dove possibile realizzare una piscina interrata; piano primo ampio disimpegno, 3 camere da letto di cui due dal taglio matrimoniale, bagno e locale con accesso diretto dalla camera matrimoniale dove possibile creare (a richiesta) un ulteriore secondo bagno a servizio del piano primo. L'immobile verrà realizzato con le seguenti finiture: predisposizione impianto d'allarme, controllo principali funzioni mediante app per smartphone, impianto videocitofono, impianto tv e predisposizione satellitare, impianto fotovoltaico con predisposizione per impianto d'accumulo, cancello carraio automatico, basculante elettrica sezionale, impianto riscaldamento e raffrescamento a pavimento, serramenti in PVC ad elevata resistenza termica, portoncini d'ingresso blindati, tapparelle in alluminio con anima coibentata in poliuretano, struttura a telaio in cemento armato, copertura tetto a falde inclinate realizzata con struttura in legno ventilata con copertura a pannello sandwich isolato termicamente di finitura esterna a finto coppo, pareti verticali esterne realizzate con blocchi di laterizio modello NORMABLOCK, requisiti acustici degli edifici a norma di legge, isolamento termico come da legge 10/91 e successive, lattonerie in lamiera pre verniciata, zanzariere su tutti i serramenti, movimentazione elettrica della chiusura oscurante, soglie delle porte e davanzali in marmo di Botticino, pavimentazioni esterne in gress porcellanato sia per i camminamenti pedonali che per i passaggi carrai, porte interne tipologia cieca ad un'anta con maniglie in cromo satinato, pavimentazioni e rivestimenti interni in gress porcellanato (varie scelte colori e formati) resistente, antiscivolo e antimacchia, sanitari sospesi della ditta I[…]

