Valutazione immobiliare indipendente, accurata e gratuita
Appartamento in vendita a Dovera a 95.000 € (cod.65a0d832)
Caasa non ha sufficienti informazioni per commentare l'appartamento in vendita a Dovera - 65a0d832.
Analisi immobiliare
I dati in posseso di Caasa per quest'immobile sono insufficienti, inaffidabili o contraddittori per proporre un'analisi attendibile.
Mercato immobiliare a Dovera
Per quanto riguarda più in generale il comune di Dovera, sono presenti al momento più di trenta annunci per
appartamenti in vendita (meno dell'1% dell'intera provincia) .
Possiamo inoltre considerare che in tutto il comune negli ultimi 6 mesi, i prezzi per appartamenti in vendita sono
in sostanziale aumento (+5,71%).
NOVITÀ Il risultato che vedi dipende dai dati che siamo riusciti ad estrarre dall'annuncio: ottieni una stima più accuranta di questo immobile, inserendo dati più precisi.
N.B. L'Opinione di Caasa® è un servizio sperimentale realizzato tramite tecniche di Intelligenza Artificiale, fornito senza alcuna garanzia di correttezza e completezza. Leggi il disclaimer o segnalaci un problema.
IMMAGINI
IN SINTESI
PROPOSTO DA:
MARIPOSA IMMOBILIARE DI PAVESI GIORDANO & SAS
VIA RIVA FREDDA, 34, Crema (CR)
DESCRIZIONE
con posto auto con cantina con termocondizionamento
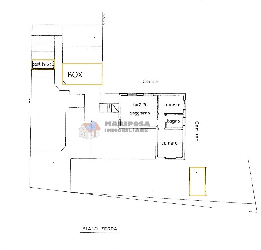
In vendita a Dovera, proponiamo un TRILOCALE situato al piano terra all'interno di un contesto civile. L'immobile è composto da soggiorno con cucina a vista, disimpegno, due camere e bagno. L'appartamento necessità di alcuni lavori di sistemazione, rendendolo ideale per chi desidera personalizzare gli spazi secondo il proprio gusto. Il riscaldamento è autonomo, garantendo una gestione efficiente dei consumi. Inclusi nella proprietà vi sono un box, una cantina e un posto auto, tutti situati al piano terra, per una maggiore praticità. Questa soluzione è perfetta per famiglie o per chi cerca un'abitazione funzionale e facilmente accessibile. Non perdere l'opportunità di visitare questo appartamento che offre comfort e comodità in una posizione strategica. Contattaci allo 0373 476773 per maggiori informazioni e per fissare un appuntamento! EPI: 138,42 kwh/m2 anno


