Valutazione immobiliare indipendente, accurata e gratuita
Appartamento in vendita a Cremona a 57.975 € (cod.653202b2)
Caasa non ha sufficienti informazioni per commentare l'appartamento in vendita a Cremona - 653202b2.
Analisi immobiliare
I dati in posseso di Caasa per quest'immobile sono insufficienti, inaffidabili o contraddittori per proporre un'analisi attendibile.
Mercato immobiliare a Cremona
Per quanto riguarda più in generale la città di Cremona, sono presenti al momento ben circa mille annunci per
appartamenti in vendita (meno di un terzo dell'intera provincia)
e il maggior numero di annunci per questa tipologia sono relativi alla zona di Cremona Centro.
Possiamo inoltre considerare che in tutta la città negli ultimi 6 mesi, i prezzi per appartamenti in vendita sono
in sostanziale aumento (+7,07%).
NOVITÀ Il risultato che vedi dipende dai dati che siamo riusciti ad estrarre dall'annuncio: ottieni una stima più accuranta di questo immobile, inserendo dati più precisi.
N.B. L'Opinione di Caasa® è un servizio sperimentale realizzato tramite tecniche di Intelligenza Artificiale, fornito senza alcuna garanzia di correttezza e completezza. Leggi il disclaimer o segnalaci un problema.
IMMAGINI
IN SINTESI
PROPOSTO DA:
Case all'Asta
DESCRIZIONE
di nuova costruzione con posto auto con cantina con terrazza con balcone con garage di nuova costruzione con cortile in asta giudiziaria
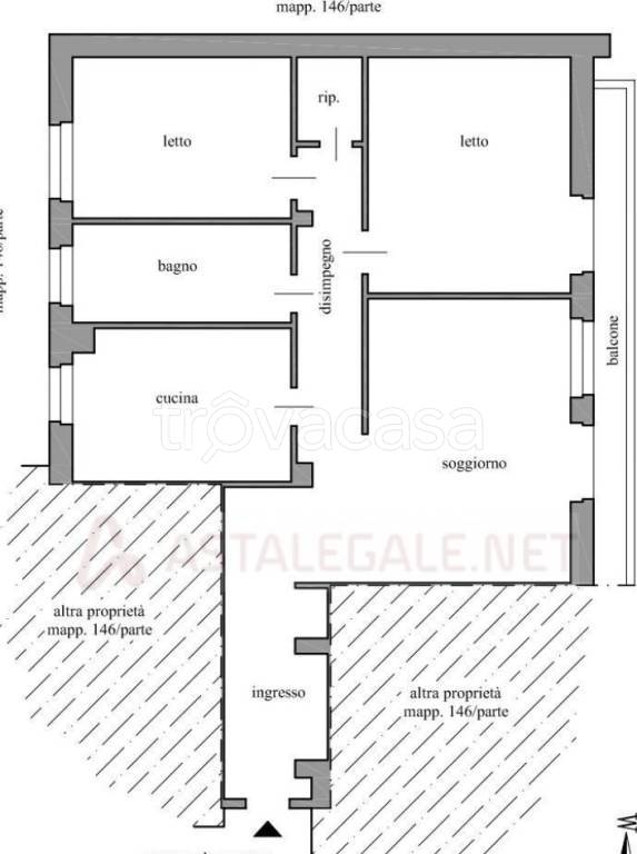
Appartamento al secondo piano in condominio. Ingresso, soggiorno e cucina separata. Due camere, corridoio e bagno. Balcone. Cantina al piano seminterrato e garage con accesso da cortile condominiale. Nessun costo di iscrizione con Case all'Asta - Acq […]
