Valutazione immobiliare indipendente, accurata e gratuita
Appartamento in vendita a Crema in zona San Bernardino a 220.000 € (cod.654dede5)
Caasa non ha sufficienti informazioni per commentare l'appartamento a Crema in zona San Bernardino - 654dede5.
Analisi immobiliare
I dati in posseso di Caasa per quest'immobile sono insufficienti, inaffidabili o contraddittori per proporre un'analisi attendibile.
Mercato immobiliare a Crema
Per quanto riguarda più in generale la città di Crema, sono presenti al momento oltre 500 annunci per
appartamenti in vendita (quasi il 20% dell'intera provincia)
e il maggior numero di annunci per questa tipologia sono relativi proprio alla zona di San Bernardino.
Per quanto riguarda la richiesta media in zona San Bernardino, dove sorge l'appartamento (pressi Via Montello), essa è pari a circa
1.925 €/m² per appartamenti in vendita.
Relativamente alla dinamica dei prezzi, possiamo dire che negli ultimi 6 mesi i prezzi medi in tutta la città per appartamenti in vendita sono
sostanzialmente stabili (+0,87%).
NOVITÀ Il risultato che vedi dipende dai dati che siamo riusciti ad estrarre dall'annuncio: ottieni una stima più accuranta di questo immobile, inserendo dati più precisi.
N.B. L'Opinione di Caasa® è un servizio sperimentale realizzato tramite tecniche di Intelligenza Artificiale, fornito senza alcuna garanzia di correttezza e completezza. Leggi il disclaimer o segnalaci un problema.
IMMAGINI
IN SINTESI
PROPOSTO DA:
Studio Casa Crema Sud
DESCRIZIONE
di nuova costruzione con posto auto con cantina con giardino con termocondizionamento di nuova costruzione
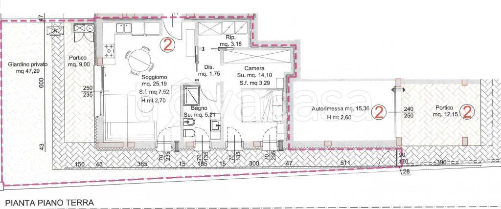
Studio Casa Crema propone, in zona non distante da centro nuovo bilocale con box. L' appartamento è in fase di costruzione e la consegna è prevista per l'estate 2027 Si trova in un piccolo contesto di soli 6 unità abitative. Il bilocale si trova a piano terra, è composto da un ampia zona giorno, soggiorno con cucina a vista di 25 mq, grande vetrata su portico di 10 mq, disimpegno, bagno , camera matrimoniale e ripostiglio/lavanderia. Le finiture sono di elevata qualità, riscaldamento a pavimento con pompa di calore, Impianto di ventilazione meccanica, pannelli fotovoltaici per 2 KW, cappotto termico di 15 cm. Serramenti a basso impatto energetico con triplo vetro, zanzariere, tapparelle motorizzate, portoncino blindato, predisposizione condizionamento e allarme. Per informazioni, visite senza impegno e valutazione GRATUITA del tuo immobile chiama il n. 037383554 / 3355696399 - Studio Casa Crema Sud, Via IV Novembre 51/F. In alternativa scrivi una mail all'indirizzo cremasud@studiocasa.it con la tua richiesta, verrai ricontattato in meno di 48 ore! Seguici anche su Facebook e Instagram alla pagina Studio Casa Crema Sud o tieniti aggiornato sul nostro sito www.studiocasa.it

