Valutazione immobiliare indipendente, accurata e gratuita
L'Opinione di Caasa® per l'appartamento in vendita a Crema a 285.000 € (cod.653d4b18)
Secondo Caasa, per l'appartamento in vendita a Crema, la richiesta di 285.000 € è equilibrata rispetto agli annunci simili.
Analisi immobiliare
L'appartamento è proposto in vendita (da Beni Immobili Srl) a
285.000 € per una
superficie commerciale di
114 m² e quindi ad un prezzo per metro quadrato pari a
2500 €/m²
.
Questo valore
è in linea con quello stimato da Caasa per immobili in vendita simili per tipologia, caratteristiche e classe energetica, che è compreso tra
2.408 €/m² e
2.652 €/m².
Sono stati utilizzati come raffronto i soli valori medi cittadini per appartamenti (da 1.250 €/m² a 2.415 €/m²) e per trivani (da 1.295 €/m² a 2.510 €/m²), visto che non è stato possibile determinare in modo affidabile la posizione dell'immobile. All'elaborazione della stima ha però contribuito anche la classe energetica (A) oltre alla condizione dell'immobile (di nuova costruzione) e alla presenza di alcune caratteristiche significative come la climatizzazione, il posto auto o la disponibilità di una cantina. Per questi motivi l'intervallo dei valori considerati accettabili per l'offerta è comunque ampio.
Mercato immobiliare a Crema
Per quanto riguarda più in generale la città di Crema, sono presenti al momento oltre 500 annunci per
appartamenti in vendita (quasi il 20% dell'intera provincia)
e il maggior numero di annunci per questa tipologia sono relativi alla zona di San Bernardino.
Per quanto riguarda la dinamica dei prezzi, negli ultimi 6 mesi i prezzi medi in tutta la città per appartamenti in vendita sono
in aumento (+4,73%).
NOVITÀ Il risultato che vedi dipende dai dati che siamo riusciti ad estrarre dall'annuncio: ottieni una stima più accuranta di questo immobile, inserendo dati più precisi.
N.B. L'Opinione di Caasa® è un servizio sperimentale realizzato tramite tecniche di Intelligenza Artificiale, fornito senza alcuna garanzia di correttezza e completezza. Leggi il disclaimer o segnalaci un problema.
IMMAGINI
IN SINTESI
PROPOSTO DA:
Beni Immobili Srl
Viale De Gasperi 25, Viale De Gasperi 25, 26013, Crema (CR)
DESCRIZIONE
di nuova costruzione con posto auto con cantina con terrazza con giardino con termocondizionamento di nuova costruzione con climatizzazione
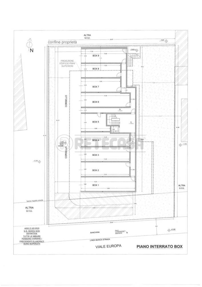
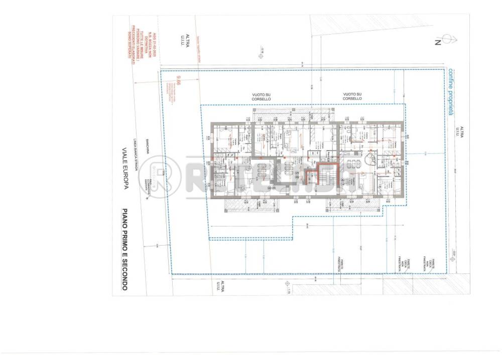
CREMA Viale Europa - zona Ipercoop EDIFICIO DI NUOVA COSTRUZIONE AD ALTA PRESTAZIONE ENERGETICA In posizione servitissima, nuovo condominio composto da 9 unità immobiliari di ampia metratura tutte dotate di giardini privati e/o spaziose logge e box doppi. Ai piani terra e primo DISPONIBILI 4 TRILOCALI composti da ingresso, comoda zona giorno openspace con cucina a vista, doppi servizi, ripostiglio e due camere da letto. I trilocali sono dotati inoltre di giardino privato (piano terra) e/o loggia e di box doppio incluso nel prezzo. La costruzione è INNOVATIVA, ANTISISMICA E PRIVA DI EMISSIONI DA COMBUSTIBILI FOSSILI. Previsti riscaldamento a pavimento di ultima generazione in pompa di calore, impianto fotovoltaico da 3 kw, serramenti esterni in PVC con triplo vetro basso emissivo, cappotto esterno, predisposizione impianto di climatizzazione estiva a split idronici, predisposizione impianto antifurto, pavimenti in gres porcellanato e ceramica monocottura di prima scelta, sanitari sospesi, frangisole motorizzati con cassonetti, sezionale elettrica, portoncino di ingresso blindato e VMC puntuale. Gli appartamenti avranno caratteristiche tali da poter rientrare nella CLASSE DI EFFICIENZA ENERGETICA "A" CERTIFICATA. POSSIBILITA' DETRAZIONI FISCALI. Alcuni dati descrittivi dell'immobile potrebbero essere solo approssimativi (es: spese di riscaldamento, spese condominiali e divisione superfici) e pertanto verranno forniti in modo completo solo telefonicamente oppure in fase di appuntamento. SI PRECISA che l'indirizzo pubblicato INDICA SOLO LA ZONA E/O LA DIREZIONE di ubicazione dell'immobile. Dettagli più precisi verranno forniti solo con contatto telefonico. Per maggiori informazioni o visite contattare senza impegno i numeri 0373/1996506 o 329/6772411. Se preferite, VENITE A CONOSCERCI DI PERSONA, ci trovate a Crema in Viale De Gasperi n. 25





