Valutazione immobiliare indipendente, accurata e gratuita
Appartamento in vendita a Villa Guardia a 75.000 € (cod.64f6b014)
Caasa non ha sufficienti informazioni per commentare l'appartamento in vendita a Villa Guardia - 64f6b014.
	Analisi immobiliare
	
	I dati in posseso di Caasa per quest'immobile sono insufficienti, inaffidabili o contraddittori per proporre un'analisi attendibile.
	
	Mercato immobiliare a Villa Guardia
	
	Per quanto riguarda più in generale il comune di Villa Guardia, sono presenti al momento più di cinquanta annunci per 
		appartamenti in vendita (meno dell'1% dell'intera provincia) 
	
	 e il maggior numero di annunci per questa tipologia sono relativi alla zona di Maccio.
	
	
	
	Per quanto riguarda la dinamica dei prezzi, negli ultimi 6 mesi i prezzi medi in tutto il comune per appartamenti in vendita sono 
		sostanzialmente stabili (+0,31%).
	
	
	
NOVITÀ Il risultato che vedi dipende dai dati che siamo riusciti ad estrarre dall'annuncio: ottieni una stima più accuranta di questo immobile, inserendo dati più precisi.
N.B. L'Opinione di Caasa® è un servizio sperimentale realizzato tramite tecniche di Intelligenza Artificiale, fornito senza alcuna garanzia di correttezza e completezza. Leggi il disclaimer o segnalaci un problema.
IMMAGINI
IN SINTESI
PROPOSTO DA:
Unioncasa Olgiate Comasco
DESCRIZIONE
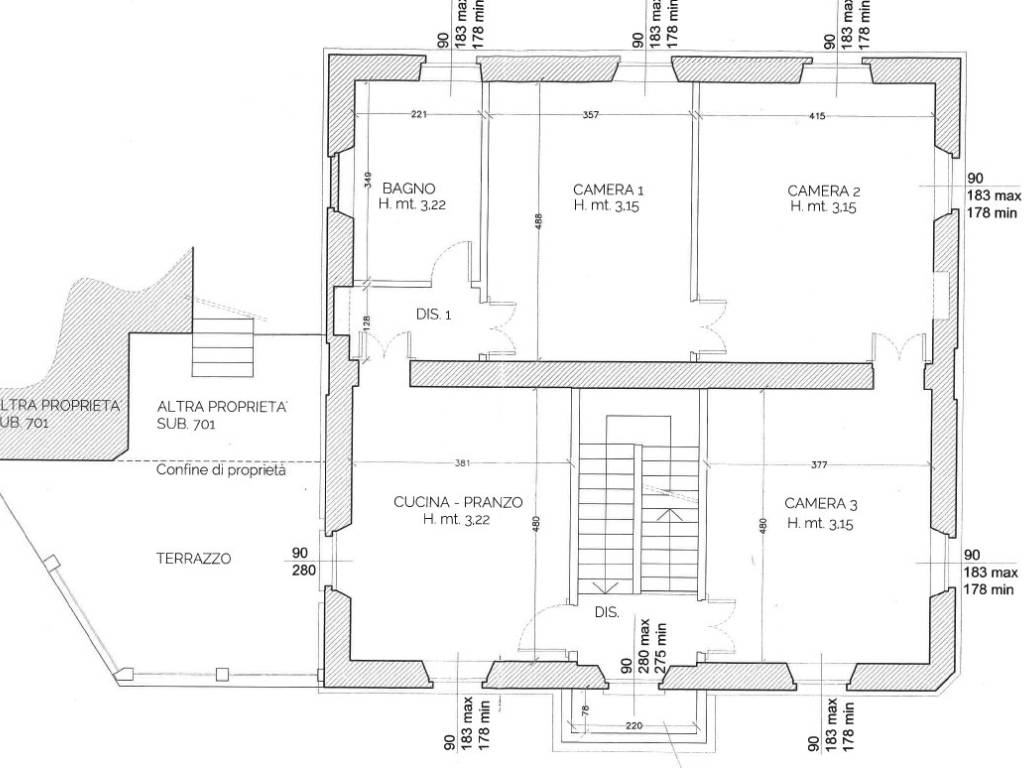
da ristrutturare con terrazza con cucina abitabile da ristrutturare
In centro paese, proponiamo in vendita un ampio trilocale situato al primo ed ultimo piano di una piccola palazzina. L’immobile, si distingue per la sua generosa metratura e per la presenza di un terrazzo di circa 20 mq, perfetto per godere di moment […]
 
                               
                               
                               
                               
                              