Valutazione immobiliare indipendente, accurata e gratuita
L'Opinione di Caasa® per l'appartamento in vendita a Turate a 135.000 € (cod.65446126)
Secondo Caasa, per l'appartamento in vendita a Turate, la richiesta di 135.000 € è equilibrata rispetto agli annunci simili.
Analisi immobiliare
L'appartamento, situato nella zona OMI B2, è proposto in vendita a
135.000 € per una
superficie commerciale di
70 m² e quindi ad un prezzo per metro quadrato pari a
1928 €/m²
.
Questo prezzo
è perfettamente allineato a quello stimato da Caasa per immobili in vendita simili per tipologia e caratteristiche e localizzati nella stessa zona OMI, che è compreso tra
1.787 €/m² e
1.949 €/m².
Grazie alla conoscenza con buona approssimazione della localizzazione dell'immobile, è stato possibile utilizzare come raffronto i dati medi elaborati esattamente nella zona OMI di appertenenza (CENTRALE). Anche se Caasa non è riuscita a determinare la classe energetica, ad affinare la stima ha contribuito anche la presenza di alcune caratteristiche significative come la disponibilità di una cantina o la presenza dell'ascensore. Per queste considerazioni l'intervallo dei valori accettabili per l'offerta è relativamente limitato.
Mercato immobiliare a Turate
Per quanto riguarda più in generale il comune di Turate, sono presenti al momento più di 150 annunci per
appartamenti in vendita (meno del 5% dell'intera provincia) .
Possiamo inoltre considerare che in tutto il comune negli ultimi 6 mesi, i prezzi per appartamenti in vendita sono
in aumento (+3,48%).
NOVITÀ Il risultato che vedi dipende dai dati che siamo riusciti ad estrarre dall'annuncio: ottieni una stima più accuranta di questo immobile, inserendo dati più precisi.
N.B. L'Opinione di Caasa® è un servizio sperimentale realizzato tramite tecniche di Intelligenza Artificiale, fornito senza alcuna garanzia di correttezza e completezza. Leggi il disclaimer o segnalaci un problema.
IMMAGINI
IN SINTESI
PROPOSTO DA:
ALMERICO CESARE RICCARDO RAFFAELE
DESCRIZIONE
con termocondizionamento con balcone con cantina con angolo cottura con ascensore
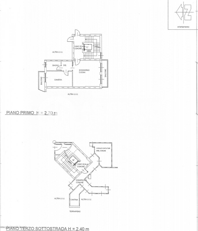
TURATE - zona centrale dalla quale è possibile raggiungere tutti i principali servizi, proponiamo in VENDITA BILOCALE in palazzina dotata di ascensore, edificata nel 2003 con finiture signorili. L'appartamento, posto al primo piano ed attualmente adibito ad uso ufficio, si compone di soggiorno con angolo cottura disimpegno, camera con pavimentazione in parquet, bagno con doccia, due balconi . Completano la vendita la CANTINA ed il BOX SINGOLO di pertinenza posti al piano terzo sotto strada. Riscaldamento autonomo, aria condizionata, serramenti in legno con doppio vetro, portoncino blindato. Prezzo di vendita € 135.000,00. Classe energetica in fase di definizione. Possibilità di mutuo personalizzato!! Il contenuto di questo annuncio, (testo, fotografie, video, elementi grafici e logo agenzia) è di proprietà di AC GROUP. E’ proibito, copiarli, riprodurli, pubblicarli o distribuirli ecc.. (anche solo in parte) senza il preventivo consenso scritto della Società proprietaria. Ogni abuso sarà punito, compreso il risarcimento del danno. La presente scheda non costituisce forma di contratto, le informazioni contenute sono a titolo indicativo e non potranno essere utilizzate come parte integrante in un eventuale contratto di locazione o vendita dell’immobile






