Valutazione immobiliare indipendente, accurata e gratuita
L'Opinione di Caasa® per l'appartamento in vendita a Rovellasca a 277.000 € (cod.65653876)
Secondo Caasa, per l'appartamento in vendita a Rovellasca, la richiesta di 277.000 € è significativamente vantaggiosa rispetto agli annunci simili.
Analisi immobiliare
L'appartamento, situato nella zona OMI C1, è proposto in vendita a
277.000 € per una
superficie commerciale di
109 m² e quindi ad un prezzo per metro quadrato pari a
2541 €/m²
.
Questo prezzo
è più vantaggioso di quello stimato da Caasa per immobili in vendita simili per tipologia, caratteristiche, classe energetica e localizzati nella stessa zona OMI, che è compreso tra
3.203 €/m² e
3.384 €/m².
La conoscenza con buona approssimazione della localizzazione dell'immobile ha consentito di utilizzare come raffronto i dati medi elaborati esattamente nella zona OMI di appertenenza (SEMICENTRALE). Inoltre, Caasa ha potuto affinare la stima anche con la conoscenza della classe energetica (A+) oltre che dello stato dell'immobile (di nuova costruzione) e di alcune caratteristiche significative come la disponibilità di una cantina o il posto auto. Per questi motivi è possibile considerare un intervallo di valori accettabili per l'offerta abbastanza limitato.
Mercato immobiliare a Rovellasca
Per quanto riguarda più in generale il comune di Rovellasca, sono presenti al momento più di 200 annunci per
appartamenti in vendita (meno del 5% dell'intera provincia) .
Possiamo inoltre considerare che in tutto il comune negli ultimi 6 mesi, i prezzi per appartamenti in vendita sono
in sostanziale aumento (+5,11%).
NOVITÀ Il risultato che vedi dipende dai dati che siamo riusciti ad estrarre dall'annuncio: ottieni una stima più accuranta di questo immobile, inserendo dati più precisi.
N.B. L'Opinione di Caasa® è un servizio sperimentale realizzato tramite tecniche di Intelligenza Artificiale, fornito senza alcuna garanzia di correttezza e completezza. Leggi il disclaimer o segnalaci un problema.
IMMAGINI
IN SINTESI
DESCRIZIONE
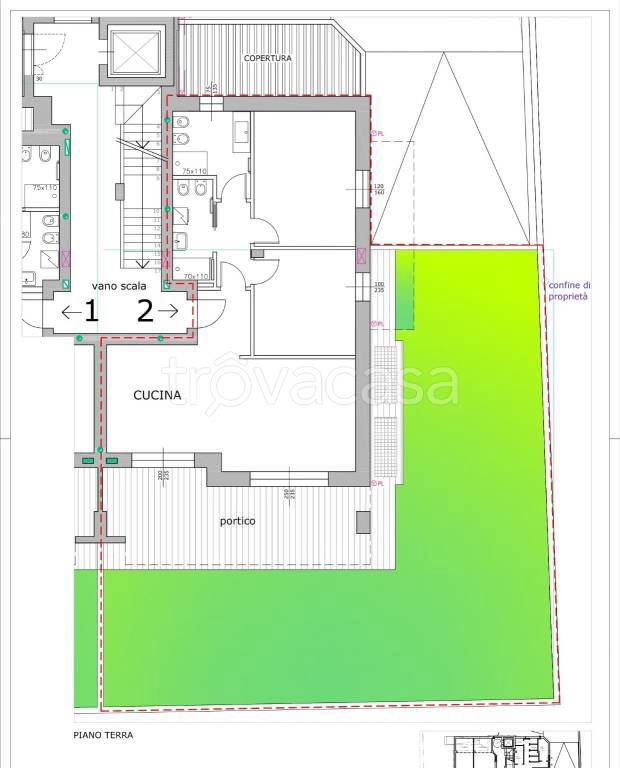
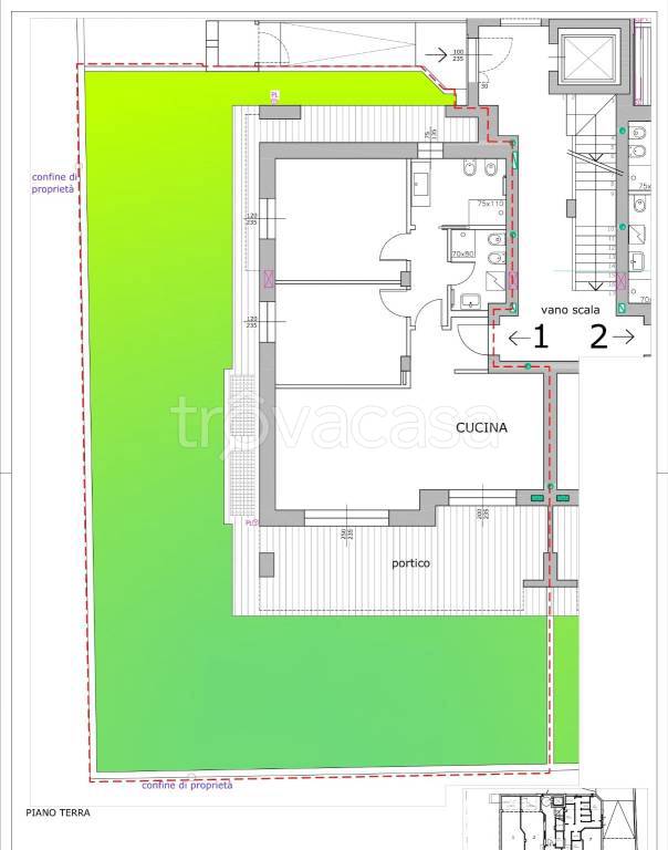
di nuova costruzione di nuova costruzione con terrazza con giardino con posto auto con termocondizionamento con cantina
Agenzia immobiliare GOLDCASA propone in vendita a Rovellasca, un piccolo ed esclusivo complesso immobiliare di prossima realizzazione, composto da sole 5 unità abitative, situato in zona residenziale e denominato "RESIDENZA MONZA 29". L'edificio sarà realizzato secondo i più recenti standard edilizi ed impiantistici, e grazie alle nuove tecnologie sarà caratterizzato da un'alta efficienza energetica. Gli spazi interni sono stati studiati per ricreare ambienti luminosi e ben distribuiti, pensati per uno stile di vita contemporaneo. Ogni appartamento sarà impreziosito da ampi terrazzi o giardini privati. Possibilità di personalizzazione delle finiture interne comprese in un ampio capitolato. A completare le unità immobiliari, la scelta tra box singoli o doppi; cantina già compresa nel prezzo di vendita. DISPONIBILI ULTIMO TRILOCALE AL PIANO TERRA CON GIARDINO E ULTIMO TRILOCALE AL PRIMO PIANO CON AMPIO TERRAZZO. In particolare ogni appartamento sarà dotato di *riscaldamento a pavimento, **isolamento termico ed acustico di ultima generazione, ***serramenti ad alte prestazioni con vetrocamera, ****ventilazione meccanica controllata per un costante ricambio d'aria, *****impianto domotico per la gestione degli impianti

