Valutazione immobiliare indipendente, accurata e gratuita
Appartamento in vendita ad Olgiate Comasco a 169.000 € (cod.657f4d71)
Caasa non ha sufficienti informazioni per commentare l'appartamento in vendita ad Olgiate Comasco - 657f4d71.
Analisi immobiliare
I dati in posseso di Caasa per quest'immobile sono insufficienti, inaffidabili o contraddittori per proporre un'analisi attendibile.
Mercato immobiliare ad Olgiate Comasco
Per quanto riguarda più in generale il comune di Olgiate Comasco, sono presenti al momento più di 300 annunci per
appartamenti in vendita (meno del 5% dell'intera provincia) .
Relativamente alla dinamica dei prezzi, possiamo dire che negli ultimi 6 mesi i prezzi medi in tutto il comune per appartamenti in vendita sono
in leggero aumento (+2,31%).
NOVITÀ Il risultato che vedi dipende dai dati che siamo riusciti ad estrarre dall'annuncio: ottieni una stima più accuranta di questo immobile, inserendo dati più precisi.
N.B. L'Opinione di Caasa® è un servizio sperimentale realizzato tramite tecniche di Intelligenza Artificiale, fornito senza alcuna garanzia di correttezza e completezza. Leggi il disclaimer o segnalaci un problema.
IMMAGINI
IN SINTESI
PROPOSTO DA:
Unioncasa Olgiate Comasco
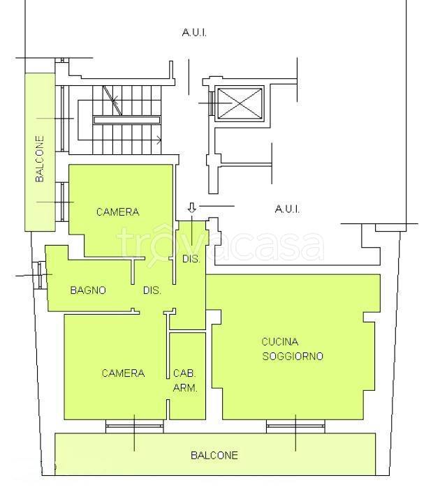
DESCRIZIONE
di recente ristrutturazione con terrazza con cantina con balcone di recente ristrutturazione di recente costruzione con ascensore
Sei alla ricerca di un appartamento luminoso posto nel cuore della città? Vieni a scopri questo splendido TRILOCALE situato al quinto piano di una palazzina completamente ristrutturata nel 2020 e dotata di ascensore! L'appartamento, che si trova in centro ad Olgiate Comasco a pochi passi da tutti i principali servizi, offre una zona giorno luminosa con cucina a vista e accesso diretto a un balcone panoramico, ideale per godersi momenti di relax. La camera da letto matrimoniale è arricchita da una cabina armadio, mentre la seconda camera matrimoniale offre ampi spazi per il tuo comfort ed un secondo balcone privato. Il bagno moderno è dotato di una pratica doccia, e per le tue esigenze di spazio extra, troverai una cantina al piano seminterrato. Questo appartamento dotato di aria condizionata è perfetto per chi cerca un'abitazione moderna e funzionale. Non lasciarti sfuggire questa opportunità unica nel cuore di Olgiate! LA VIA INSERITA E' PURAMENTE INDICATIVA PER PRIVACY DEI PROPRIETARI, L'IMMOBILE RIMANE NEI LIMITROFI DELLA POSIZIONE INDICATA

