Valutazione immobiliare indipendente, accurata e gratuita
L'Opinione di Caasa® per la casa indipendente in vendita a Mariano Comense a 445.000 € (cod.657eaead)
Secondo Caasa, per la casa indipendente in vendita a Mariano Comense, la richiesta di 445.000 € è significativamente svantaggiosa rispetto agli annunci simili.
Analisi immobiliare
La casa indipendente, situata nella zona OMI C1, è proposta in vendita a
445.000 € per una
superficie commerciale di
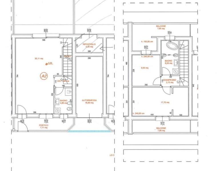
111 m² e quindi ad un prezzo per metro quadrato pari a
4009 €/m²
.
Tale prezzo
è meno conveniente di quello stimato da Caasa per immobili in vendita simili per tipologia, caratteristiche, classe energetica e zona, che è compreso tra
3.198 €/m² e
3.466 €/m².
Presa in considerazione la posizione della casa indipendente si sono utilizzati in raffronto i valori medi nelle zone limitrofe . Ad affinare la stima ha contribuito anche la classe energetica (A+) oltre alla conoscenza dello stato dell'immobile (di nuova costruzione) e di alcune caratteristiche significative come il posto auto. Per queste considerazioni i valori accettabili per l'offerta costituiscono un intervallo relativamente limitato.
Mercato immobiliare a Mariano Comense
Per quanto riguarda più in generale la città di Mariano Comense, sono presenti al momento più di 200 annunci per
case indipendenti in vendita (meno del 5% dell'intera provincia) .
Relativamente alla dinamica dei prezzi, possiamo dire che negli ultimi 6 mesi i prezzi medi in tutta la città per case indipendenti in vendita sono
in sostanziale aumento (+5,36%).
NOVITÀ Il risultato che vedi dipende dai dati che siamo riusciti ad estrarre dall'annuncio: ottieni una stima più accuranta di questo immobile, inserendo dati più precisi.
N.B. L'Opinione di Caasa® è un servizio sperimentale realizzato tramite tecniche di Intelligenza Artificiale, fornito senza alcuna garanzia di correttezza e completezza. Leggi il disclaimer o segnalaci un problema.
IMMAGINI
IN SINTESI
DESCRIZIONE
di nuova costruzione con posto auto con balcone con termocondizionamento con giardino di nuova costruzione
MARIANO COMENSE: in zona residenziale comoda con il centro del paese, proponiamo in vendita in NUOVA COSTRUZIONE, una villetta centrale di due piani fuori terra. Piano terra di 55,5 mq prevista con un ampio soggiorno con cucina ed un bagno. I locali avranno accesso al giardino di proprietà di circa 35 mq libero tra fronte e retro. Scala di collegamento che conduce al piano primo di altri 55,5 mq dove sono previste due camere da letto, due balconi di circa 9 mq cadauno ed un bagno. Al piano terra troveremo un ampio box doppio in lunghezza con accesso carraio indipendente. La villetta verrà costruita secondo linee moderne ed eleganti garantendo un basso consumo energetico grazie all’alto isolamento termico, inoltre come conseguenza dell’assenza di impianti di adduzione gas metano, gli ambienti saranno più sicuri. La soluzione verrà realizzata con riscaldamento con pompa di calore aria – acqua sarà del tipo a pavimento radiante, alimentato con acqua a bassa temperatura, le facciate saranno rivestite con cappotto e l’isolamento sarà realizzato con pannelli isolanti di eps. Tutti i serramenti saranno con profilo in PVC e tapparelle in alluminio. La pavimentazione è prevista con piastrelle di grès porcellanato con formati variabili in tutta la zona giorno, mentre nella zona notte ci sarà possibilità di pavimento in legno prefinito di listelli di rovere posato a correre con idonei collanti con doga da 15x180 cm. Tutti i sanitari saranno della ditta Ideal Standard serie TESI new o equivalente. Nella villetta sarà prevista la predisposizione dell’impianto anti-intrusione, predisposizione dell’impianto autonomo di raffrescamento estivo per i locali soggiorno-pranzo, camere da letto. Viene installato anche un impianto fotovoltaico destinato a produrre energia per l’autoconsumo dell’edificio. CONSEGNA PREVISTA A LUGLIO 2026. * * Stai pensando di vendere o affittare il tuo immobile? Siamo al tuo fianco nel momento più importante: la valutazione…affidati a noi per una stima gratuita e non impegnativa. Scopri quale mutu[…]


