Valutazione immobiliare indipendente, accurata e gratuita
Appartamento in vendita a Lomazzo a 150.787 € (cod.652f3e93)
Caasa non ha sufficienti informazioni per commentare l'appartamento in vendita a Lomazzo - 652f3e93.
Analisi immobiliare
I dati in posseso di Caasa per quest'immobile sono insufficienti, inaffidabili o contraddittori per proporre un'analisi attendibile.
Mercato immobiliare a Lomazzo
Per quanto riguarda più in generale il comune di Lomazzo, sono presenti al momento più di 200 annunci per
appartamenti in vendita (meno del 5% dell'intera provincia)
e il maggior numero di annunci per questa tipologia sono relativi alla zona di Manera.
La dinamica dei prezzi in tutto il comune mostra che negli ultimi 6 mesi, i prezzi per appartamenti in vendita sono
in sostanziale aumento (+5,77%).
NOVITÀ Il risultato che vedi dipende dai dati che siamo riusciti ad estrarre dall'annuncio: ottieni una stima più accuranta di questo immobile, inserendo dati più precisi.
N.B. L'Opinione di Caasa® è un servizio sperimentale realizzato tramite tecniche di Intelligenza Artificiale, fornito senza alcuna garanzia di correttezza e completezza. Leggi il disclaimer o segnalaci un problema.
IMMAGINI
IN SINTESI
PROPOSTO DA:
Case all'Asta
DESCRIZIONE
di nuova costruzione con posto auto di nuova costruzione con garage con cantina in asta giudiziaria
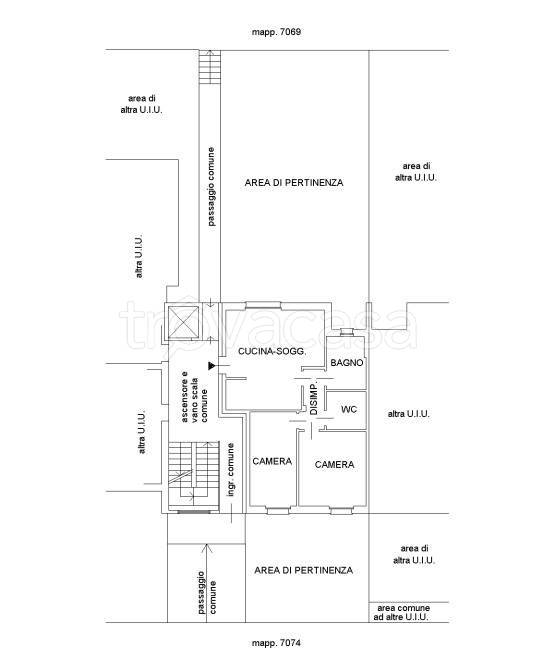
Trilocale della superficie commerciale di 86,00 mq situato al piano terra . L'unità immobiliare è così composta: Zona Giorno: Soggiorno con cucina a vista. Zona Notte: Disimpegno, due camere da letto e due bagni. Spazi Esterni: Doppia area esterna di […]
