Valutazione immobiliare indipendente, accurata e gratuita
Appartamento in affitto a Como in zona Borghi a 1.800 € mese (cod.6562e567)
Caasa non ha sufficienti informazioni per commentare l'appartamento in affitto a Como in zona Borghi - 6562e567.
Analisi immobiliare
I dati in posseso di Caasa per quest'immobile sono insufficienti, inaffidabili o contraddittori per proporre un'analisi attendibile.
Mercato immobiliare a Como
Per quanto riguarda più in generale la città di Como, sono presenti al momento oltre 500 annunci per
appartamenti in affitto (quasi la metà dell'intera provincia)
e il maggior numero di annunci per questa tipologia sono relativi alla zona di Como Centro, mentre la zona di Borghi risulta molto meno attiva considerando il numero di annunci presenti.
La richiesta media nella zona dove sorge l'appartamento (Borghi) è pari a
16,1 €/m² mese, molto vicina ai valori della zona Como Centro che sono i più alti della città .
La dinamica dei prezzi in tutta la città mostra che negli ultimi 6 mesi, i prezzi per appartamenti in affitto sono
in deciso aumento (+7,54%).
NOVITÀ Il risultato che vedi dipende dai dati che siamo riusciti ad estrarre dall'annuncio: ottieni una stima più accuranta di questo immobile, inserendo dati più precisi.
N.B. L'Opinione di Caasa® è un servizio sperimentale realizzato tramite tecniche di Intelligenza Artificiale, fornito senza alcuna garanzia di correttezza e completezza. Leggi il disclaimer o segnalaci un problema.
IMMAGINI
IN SINTESI
DESCRIZIONE
di recente ristrutturazione con termocondizionamento con posto auto di recente ristrutturazione con terrazza con balcone con cantina con giardino da ristrutturare
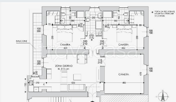
Como, borghi in complesso di signorili palazzine del 1900" circondate da zone giardino condominiale e strada di accesso privata, affittasi quadrilocale in corso di completa ristrutturazione interna ,composto da ingresso ,zona soggiorno e cucina ampio balcone panoramico ,tre camere ,tre bagni ,cantina e posto auto scoperto in area condominiale, riscaldamento centralizzato con termovalvole , impianto di climatizzazione autonomo, la palazzina è servita da servo scale per persone

