Valutazione immobiliare indipendente, accurata e gratuita
Casa indipendente in vendita a Carbonate a 398.000 € (cod.64014495)
Caasa non ha sufficienti informazioni per commentare la casa indipendente in vendita a Carbonate - 64014495.
Analisi immobiliare
I dati in posseso di Caasa per quest'immobile sono insufficienti, inaffidabili o contraddittori per proporre un'analisi attendibile.
Mercato immobiliare a Carbonate
Per quanto riguarda più in generale il comune di Carbonate, sono presenti al momento più di dieci annunci per
case indipendenti in vendita (meno dell'1% dell'intera provincia) .
NOVITÀ Il risultato che vedi dipende dai dati che siamo riusciti ad estrarre dall'annuncio: ottieni una stima più accuranta di questo immobile, inserendo dati più precisi.
N.B. L'Opinione di Caasa® è un servizio sperimentale realizzato tramite tecniche di Intelligenza Artificiale, fornito senza alcuna garanzia di correttezza e completezza. Leggi il disclaimer o segnalaci un problema.
IMMAGINI
IN SINTESI
PROPOSTO DA:
MB STUDIO S.R.L.
DESCRIZIONE
di nuova costruzione con posto auto con terrazza con giardino con garage di nuova costruzione con termocondizionamento
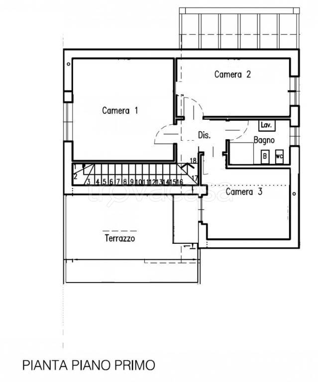
CARBONATE – VILLA SINGOLA IN COSTRUZIONE IN CLASSE A4 Un'opportunità unica per vivere in una casa moderna, efficiente e sostenibile! Se stai cercando una villa esclusiva, pensata per offrire comfort, eleganza e un basso impatto ambientale, questa è l'opportunità che fa per te. L’immobile si sviluppa su due livelli: al PIANO TERRA troviamo una ZONA GIORNO, composta da SOGGIORNO, zona pranzo e cucina. La luminosa zona giorno è dotata di ampia vetrata con affaccio diretto sul GIARDINO. Scala interna che conduce al piano primo composto da tre spaziose camere da letto e servizio; Il piano primo è servito da GRANDE e LUMINOSO TERRAZZO. La villetta è circondata da circa 270 mq di area esterna, in parte a verde-giardino, in parte piastrellata. A completare la proprietà un BOX DOPPIO in larghezza oltre a 2 POSTI AUTO. Agevole accesso diretto tra il box e la casa. La villa è in fase di costruzione, questo permette la completa personalizzazione degli interni e delle finiture. La consegna è prevista per primavera 2026 PARTICOLARI TECNICI DEL CAPITOLATO: - Serramenti esterni in pvc con doppiovetro ad alte prestazioni energetiche; - Pompa di calore per il riscaldamento e la generazione di acqua calda; - Impianto di riscaldamento a pavimento; - Portoncino blindato; - Impianto fotovoltaico; - Predisposizione sistema antintrusione; - Predisposizione impianto di condizionamento; - Portone sezionale del box motorizzato; - Impianto elettrico connesso; Contattaci oggi stesso per prenotare una visita con il nostro consulente commerciale. Mb studio, Sempre al tuo fianco sempre a casa! Le seguenti informazioni non costituiscono elemento contrattuale

