Valutazione immobiliare indipendente, accurata e gratuita
Casa indipendente in vendita a Capiago Intimiano a 460.000 € (cod.657fa1e7)
Caasa non ha sufficienti informazioni per commentare la casa indipendente in vendita a Capiago Intimiano - 657fa1e7.
Analisi immobiliare
I dati in posseso di Caasa per quest'immobile sono insufficienti, inaffidabili o contraddittori per proporre un'analisi attendibile.
Mercato immobiliare a Capiago Intimiano
Per quanto riguarda più in generale il comune di Capiago Intimiano, sono presenti al momento più di cinquanta annunci per
case indipendenti in vendita (meno dell'1% dell'intera provincia) .
La dinamica dei prezzi in tutto il comune mostra che negli ultimi 6 mesi, i prezzi per case indipendenti in vendita sono
in sostanziale aumento (+6,01%).
NOVITÀ Il risultato che vedi dipende dai dati che siamo riusciti ad estrarre dall'annuncio: ottieni una stima più accuranta di questo immobile, inserendo dati più precisi.
N.B. L'Opinione di Caasa® è un servizio sperimentale realizzato tramite tecniche di Intelligenza Artificiale, fornito senza alcuna garanzia di correttezza e completezza. Leggi il disclaimer o segnalaci un problema.
IMMAGINI
IN SINTESI
PROPOSTO DA:
WELCHOME SOLUZIONI IMMOBILIARI SNC DI E. PUZONE E L. DENTONI
DESCRIZIONE
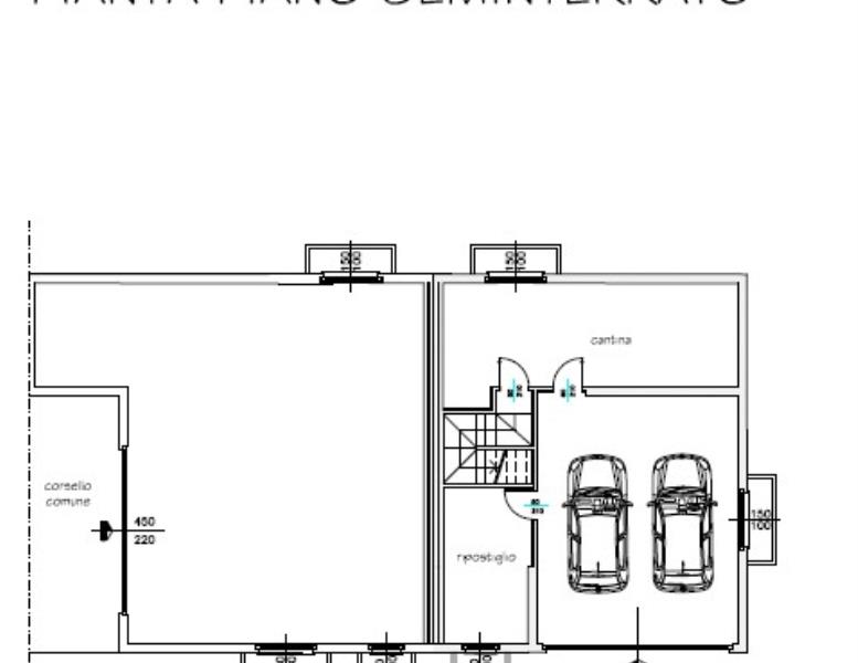
di nuova costruzione con posto auto con giardino con garage con terrazza con balcone con cantina con termocondizionamento di nuova costruzione con cucina abitabile
Immerse nel verde ma allo stesso tempo a due passi dai principali servizi, proponiamo ville bifamiliari di nuova edificazione in residenza di sole quattro unità. Ogni abitazione si sviluppa su due livelli abitativi per un totale di 150 mq oltre ad ampio interrato di 90 mq composto da garage doppio in larghezza, locale tecnico e cantina/taverna di circa 25 mq. Una scala interna collega al piano terra composto da un ampio soggiorno con due grandi aperture per accedere al giardino di proprietà, cucina abitabile ed un bagno con doccia. Al piano primo si sviluppano tre spaziose camere da letto, tutte con accesso al balcone, un bagno padronale ed un comodo ripostiglio; caratteristica di questo piano sono travi a vista sbiancate. Ogni unità avrà accesso pedonale indipendente. Sono previsti impianti di ultima generazione volte al risparmio energetico con riscaldamento a pavimento, pannelli fotovoltaici e pompa di calore, tapparelle in alluminio motorizzate, videocitofono e ceramiche Marazzi. Capitolato di alto livello e possibilità di personalizzare l'abitazione in ogni sua parte dalle finiture alla distribuzione degli spazi interni. Maggiori informazioni in ufficio


